RIJEKA, ZENTRUM - Geschäftsgebäude mit 34 Parkplätzen
| Registrationsnummer | DN-37941 |
| Art des Angebots | Verkauf |
| Kategorie | Various |
| Bezirk | Primorsko-goranska |
| Gemeindeteil | Rijeka |
| Preis | 980 000 € |
| Gesamtfläche | 600 m² |
| Entfernung vom meer | 500 m |
| Strom | |
| Wasser | |
| Abfall | |
| Heizung | ano |
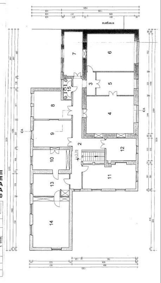
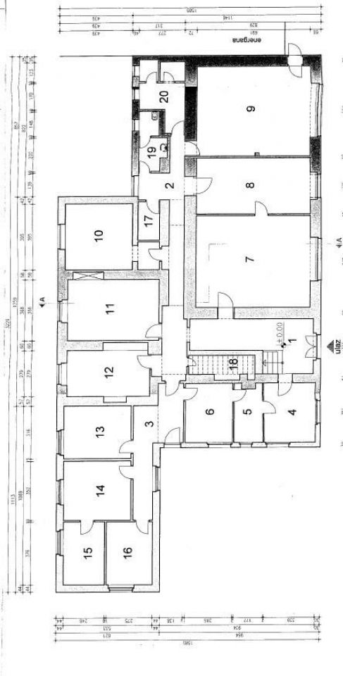
RIJEKA, ZENTRUM – Geschäftsgebäude mit 34 Parkplätzen Zum Verkauf steht ein Geschäftsgebäude im Zentrum von Rijeka, ideal für verschiedene Geschäftsaktivitäten. Das Gebäude verfügt über eine Nettofläche von 600 m2 (zwei Funktionsgeschosse, ca. 300 m2 pro Geschoss) und wird mit einem eingezäunten Betriebshof von 1235 m2 geliefert, der 34 Parkplätze umfasst. Eckdaten: Gebäudegrundfläche: 392 m2 Nettonutzfläche: 600 m2 Manipulationsfläche und Parkplätze: 1235 m2 Garten/Park auf dem Grundstück: 30 m2 Anzahl der Räume: 15 Räume pro Etage Nutzungsgenehmigung: Das Gebäude verfügt über eine gültige Nutzungsgenehmigung. Diese Gewerbefläche bietet zahlreiche Möglichkeiten für verschiedene Aktivitäten, darunter Kliniken, IT- und Designbüros, Handel und andere Geschäftsanforderungen, die eigene Parkplätze erfordern. Die Räumlichkeiten sind sofort bezugsfertig und ihre Lage ermöglicht eine unkomplizierte Geschäftsabwicklung im Stadtzentrum. Preis: 980.000 EUR. Eine ideale Gelegenheit für Investoren und Unternehmer, die nach geräumigen und funktionalen Geschäftsräumen im Herzen von Rijeka suchen!
Bei allen unseren Angeboten sind die Preise identisch mit dem Direktkauf bei der Agentur/dem Entwickler in Kroatien, da wir der offizielle Vertreter dieser Agenturen auf dem tschechischen, slowakischen, deutschen und österreichischen Markt sind. Dies gilt ohne zusätzliche Zuschläge für deutschsprachige Dienstleistungen.
Sehr geehrte Kunden, die Besichtigung von Immobilien, die Mitteilung der Lage und andere detaillierte Informationen sind nur mit einem unterzeichneten Vermittlungsvertrag möglich, der die Grundlage für weitere Aktionen wie den Kauf einer Immobilie bildet. Alles steht im Einklang mit dem Gesetz über die Vermittlung beim Kauf von Immobilien. Der Käufer zahlt eine gesetzliche Vermittlungsprovision in Höhe von 3% (+ MwSt.) des vereinbarten Preises, und zwar nur im Falle des Kaufs der Immobilie. Sollte der Kauf nicht zustande kommen, ist der Vertrag für Sie nicht bindend und wird annulliert. Wenn Sie ernsthaft an der Immobilie interessiert sind, senden wir Ihnen den Vertrag auf Anfrage zu.
Wir werden Ihnen innerhalb von 24 Stunden antworten.
Wir bieten nur geprüfte Immobilien an.
Wir garantieren eine hohe Servicequalität.
Wir können Ihnen bei der Vermittlung von Unterkünften während der Besichtigungen helfen.
- Ich habe eine Immobilie aus dem Angebot ausgewählt
- Ich kontaktiere den Makler
- Ich unterschreibe einen Vertretungsvertrag - Details hier! (die Unterzeichnung des Vertrags ist gesetzlich vorgeschrieben)
- Ich richte eine OIB ein - Details hier (die Einrichtung ist gesetzlich vorgeschrieben)
- Besichtigungen vor Ort
- Unterzeichnung der Reservierung, des Kaufvertrags