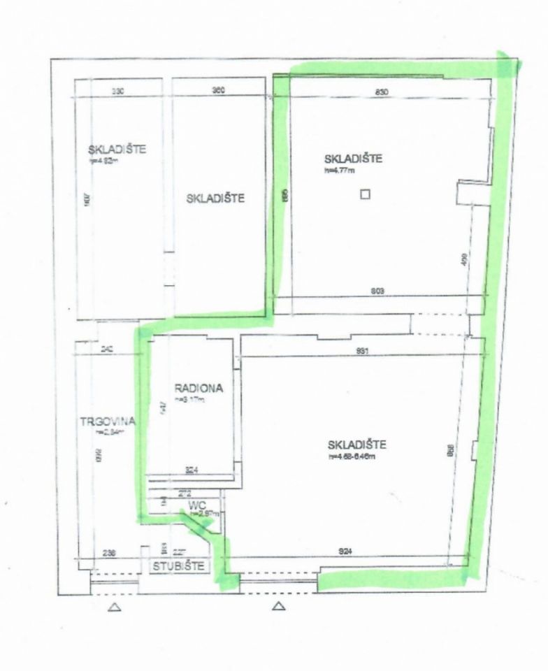
RIJEKA, ZENTRUM - Gewerbefläche 174 m², Lagerhalle im Erdgeschoss und Parkplatz!
| Registrationsnummer | DN-44920 |
| Art des Angebots | Verkauf |
| Kategorie | Various |
| Bezirk | Primorsko-goranska |
| Gemeindeteil | Rijeka |
| Preis | 1 850 € |
| Gesamtfläche | 174 m² |
| Strom | |
| Wasser | |
| Abfall |
RIJEKA, ZENTRUM – Gewerbefläche 174 m², Lager im Erdgeschoss und Parkplatz! Das Angebot umfasst eine Gewerbefläche mit Lager im Erdgeschoss des Gebäudes. Dank direktem Zugang und einem Parkplatz direkt vor dem Gebäude ist die Warenannahme unkompliziert und der Arbeitsablauf reibungslos. Die Fläche verfügt über eine garantierte elektrische Leistung von 13,80 kW. Die 174 m² große Fläche ist als offener Raum (zwei Zimmer), ein abgeschlossenes Büro und eine Toilette gestaltet und bietet somit ein optimales Verhältnis zwischen Arbeits- und Verwaltungsbereich. Ein besonderer Vorteil ist die Raumhöhe von bis zu 7 Metern, die vielfältige Möglichkeiten zur Lagerorganisation, zum Aufbau einer Galerie oder zur Anpassung an unterschiedliche Geschäftsbedürfnisse eröffnet. Die Fläche wird in einem ordentlichen und neutralen Zustand übergeben und kann an die Bedürfnisse des zukünftigen Nutzers angepasst werden. Aufgrund ihres Konzepts und ihrer Lage eignet sie sich ideal für Lager, Logistik, Dienstleistungsunternehmen und ähnliche Branchen, die funktionale Erdgeschossflächen benötigen. Die Lage bietet gute Erreichbarkeit und schnelle Anbindung an Hauptstraßen, was die Praktikabilität dieser Immobilie für den Geschäftsalltag zusätzlich erhöht.
Bei allen unseren Angeboten sind die Preise identisch mit dem Direktkauf bei der Agentur/dem Entwickler in Kroatien, da wir der offizielle Vertreter dieser Agenturen auf dem tschechischen, slowakischen, deutschen und österreichischen Markt sind. Dies gilt ohne zusätzliche Zuschläge für deutschsprachige Dienstleistungen.
Sehr geehrte Kunden, die Besichtigung von Immobilien, die Mitteilung der Lage und andere detaillierte Informationen sind nur mit einem unterzeichneten Vermittlungsvertrag möglich, der die Grundlage für weitere Aktionen wie den Kauf einer Immobilie bildet. Alles steht im Einklang mit dem Gesetz über die Vermittlung beim Kauf von Immobilien. Der Käufer zahlt eine gesetzliche Vermittlungsprovision in Höhe von 3% (+ MwSt.) des vereinbarten Preises, und zwar nur im Falle des Kaufs der Immobilie. Sollte der Kauf nicht zustande kommen, ist der Vertrag für Sie nicht bindend und wird annulliert. Wenn Sie ernsthaft an der Immobilie interessiert sind, senden wir Ihnen den Vertrag auf Anfrage zu.
Wir werden Ihnen innerhalb von 24 Stunden antworten.
Wir bieten nur geprüfte Immobilien an.
Wir garantieren eine hohe Servicequalität.
Wir können Ihnen bei der Vermittlung von Unterkünften während der Besichtigungen helfen.
- Ich habe eine Immobilie aus dem Angebot ausgewählt
- Ich kontaktiere den Makler
- Ich unterschreibe einen Vertretungsvertrag - Details hier! (die Unterzeichnung des Vertrags ist gesetzlich vorgeschrieben)
- Ich richte eine OIB ein - Details hier (die Einrichtung ist gesetzlich vorgeschrieben)
- Besichtigungen vor Ort
- Unterzeichnung der Reservierung, des Kaufvertrags