SAMOBOR, ZENTRUM – moderne Reihenhäuser in begehrter Lage!
| Registrationsnummer | DN-38160 |
| Art des Angebots | Verkauf |
| Kategorie | Häuser |
| Bezirk | Zagrebačka |
| Gemeindeteil | Samobor |
| Preis | 420 000 € |
| Gesamtfläche | 170 m² |
| Strom | |
| Wasser | |
| Abfall | |
| Klimaanlage | |
| Heizung | ano |
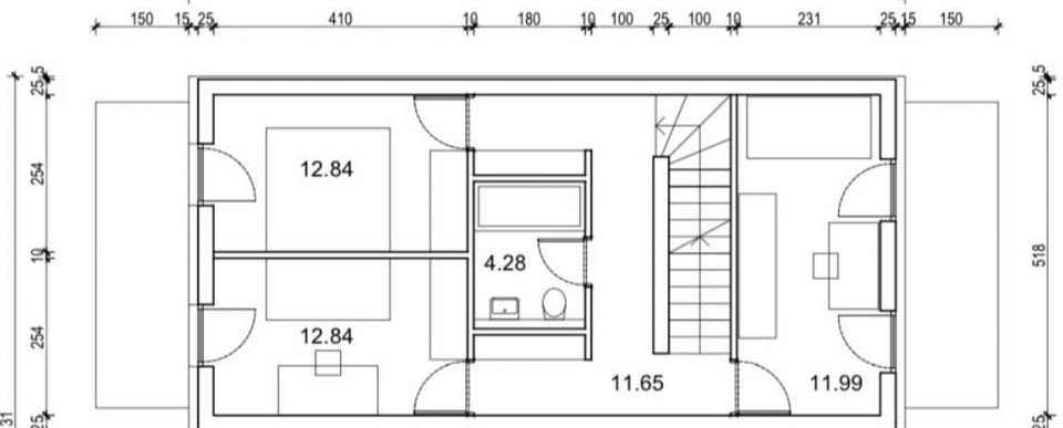
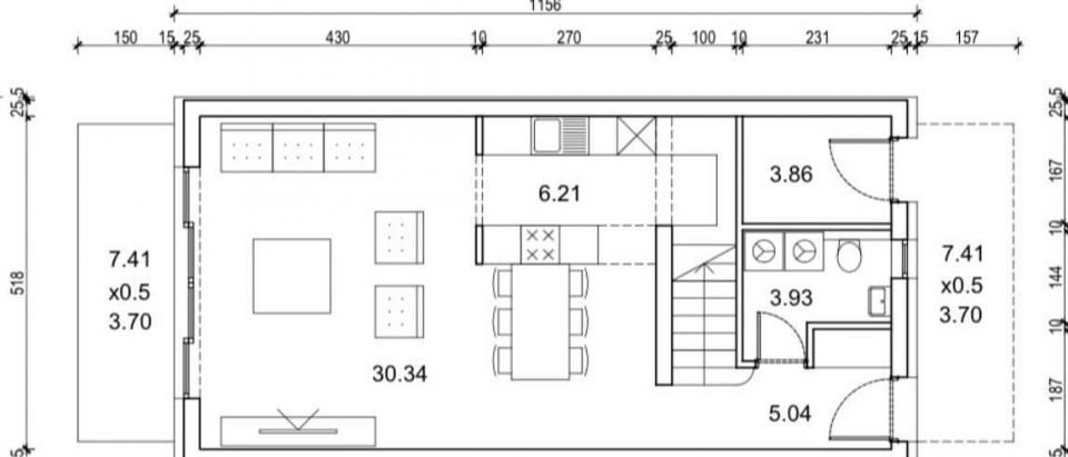
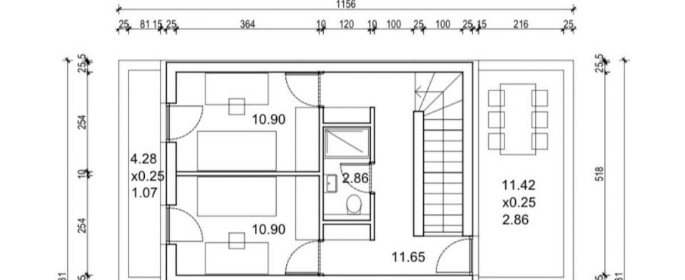
SAMOBOR, ZENTRUM – moderne Reihenhäuser in begehrter Lage! Dieses großzügige Haus mit einer Gesamtfläche von 169,81 m² (150,64 m² mit Koeffizient) erstreckt sich über drei Etagen: Erdgeschoss, Obergeschoss und Mezzanin. Die Bauarbeiten sind für diesen Sommer geplant, die Fertigstellung ist für Ende nächsten Jahres geplant. Im Erdgeschoss befinden sich ein Wohnzimmer mit Küche und Esszimmer, Toilette, Flur, Abstellraum und zwei überdachte Terrassen. Die erste Etage besteht aus drei Schlafzimmern, einem Badezimmer und einem Flur. Im oberen, zurückgesetzten Geschoss befinden sich zwei Schlafzimmer, ein Badezimmer, ein Flur und zwei Terrassen. ERDGESCHOSS Wohn-/Esszimmer: 30,34 m² Küche: 6,21 m² Toilette: 3,93 m² Flur: 5,04 m² Abstellraum: 3,86 m² Überdachte Terrasse: 7,41 m² (Koeffizient 0,5 = 3,71 m²) Überdachte Terrasse: 7,41 m² (Koeffizient 0,5 = 3,71 m²) 1. STOCK Schlafzimmer: 12,84 m² Schlafzimmer: 12,84 m² Schlafzimmer: 11,99 m² Badezimmer: 4,28 m² Flur: 11,65 m² EINGEZEICHNETES OBERGESCHOSS Schlafzimmer: 10,90 m² Schlafzimmer: 10,90 m² Badezimmer: 2,86 m² Flur: 11,65 m² Terrasse: 11,42 m² (Koeffizient 0,25 = 2,86 m²) Terrasse: 4,28 m² (Koeffizient 0,25 = 1,07 m²) Gesamt: 169,81 m² (mit Koeffizient = 150,64 m²) Das Haus befindet sich in einer außergewöhnlichen Lage, nur wenige Autominuten vom Zentrum von Samobor entfernt, in einer ruhigen Umgebung, aber mit hervorragender Anbindung an alle wichtigen Einrichtungen. Zudem sind zwei Parkplätze direkt am Haus vorhanden, was dieses Objekt auch für eine Familie praktisch macht. Für zusätzlichen Komfort wird jedes Zimmer mit einer Klimaanlage ausgestattet und das Haus verfügt über ein Wärmepumpensystem, das eine hohe Energieeffizienz und einen angenehmen Aufenthalt das ganze Jahr über ermöglicht. Dieses Haus ist die perfekte Wahl für eine Familie, die ein modernes, energieeffizientes und komfortables Zuhause in der Nähe des Zentrums von Samobor sucht.
Bei allen unseren Angeboten sind die Preise identisch mit dem Direktkauf bei der Agentur/dem Entwickler in Kroatien, da wir der offizielle Vertreter dieser Agenturen auf dem tschechischen, slowakischen, deutschen und österreichischen Markt sind. Dies gilt ohne zusätzliche Zuschläge für deutschsprachige Dienstleistungen.
Sehr geehrte Kunden, die Besichtigung von Immobilien, die Mitteilung der Lage und andere detaillierte Informationen sind nur mit einem unterzeichneten Vermittlungsvertrag möglich, der die Grundlage für weitere Aktionen wie den Kauf einer Immobilie bildet. Alles steht im Einklang mit dem Gesetz über die Vermittlung beim Kauf von Immobilien. Der Käufer zahlt eine gesetzliche Vermittlungsprovision in Höhe von 3% (+ MwSt.) des vereinbarten Preises, und zwar nur im Falle des Kaufs der Immobilie. Sollte der Kauf nicht zustande kommen, ist der Vertrag für Sie nicht bindend und wird annulliert. Wenn Sie ernsthaft an der Immobilie interessiert sind, senden wir Ihnen den Vertrag auf Anfrage zu.
Wir werden Ihnen innerhalb von 24 Stunden antworten.
Wir bieten nur geprüfte Immobilien an.
Wir garantieren eine hohe Servicequalität.
Wir können Ihnen bei der Vermittlung von Unterkünften während der Besichtigungen helfen.
- Ich habe eine Immobilie aus dem Angebot ausgewählt
- Ich kontaktiere den Makler
- Ich unterschreibe einen Vertretungsvertrag - Details hier! (die Unterzeichnung des Vertrags ist gesetzlich vorgeschrieben)
- Ich richte eine OIB ein - Details hier (die Einrichtung ist gesetzlich vorgeschrieben)
- Besichtigungen vor Ort
- Unterzeichnung der Reservierung, des Kaufvertrags