SAMOBOR, ZENTRUM - moderne Wohnung in einem Neubau in toller Lage
| Registrationsnummer | DN-38108 |
| Art des Angebots | Verkauf |
| Kategorie | Appartements |
| Bezirk | Zagrebačka |
| Gemeindeteil | Samobor |
| Preis | 352 000 € |
| Gesamtfläche | 115 m² |
| Wohnfläche (Wohnung) | 115 m² |
| Strom | |
| Wasser | |
| Abfall | |
| Klimaanlage | |
| Heizung | ano |
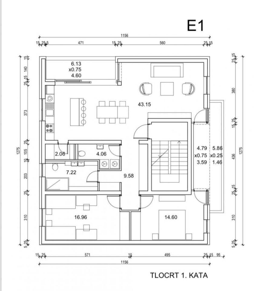
SAMOBOR, ZENTRUM – moderne Wohnung in einem Neubau in toller Lage Wir bieten Ihnen eine moderne Wohnung in einem Neubau mit einer Fläche von 114,41 m², davon 6,13 m² Loggia, 4,79 m² Loggia und 5,86 m² Terrasse, an, deren Bau noch in diesem Sommer beginnt und deren Fertigstellung für Ende nächsten Jahres geplant ist. Die Wohnung besteht aus einem funktionalen Flur, einem geräumigen Wohnzimmer, einer Küche mit Essbereich, zwei gemütlichen Schlafzimmern, einer Toilette, einem modernen Badezimmer, einer Speisekammer für zusätzlichen Stauraum, zwei Loggien und einer Terrasse, die den perfekten Ort bietet, um die Natur zu genießen. Wohnzimmer/Küche/Esszimmer: 43,15 m² Schlafzimmer 1: 16,96 m² Schlafzimmer 2: 14,60 m² Flur: 9,58 m² Toilette: 4,06 m² Badezimmer: 7,22 m² Abstellraum: 2,06 m² Loggia: 6,13 m² (Koeffizient 0,75 = 4,60 m²) Loggia: 4,79 m² (Koeffizient 0,75 = 3,59 m²) Terrasse: 5,86 m² (Koeffizient 0,25 = 1,47 m²) Gesamt: 114,41 m² (mit Koeffizient = 107,29 m²) Es befindet sich in bester Lage, nur wenige Minuten vom Zentrum von Samobor entfernt, sodass Sie alle wichtigen Annehmlichkeiten – Geschäfte, Restaurants, öffentliche Verkehrsmittel und andere Dienstleistungen – bequem erreichen können. Ideal für alle, die einen komfortablen und praktischen Wohnraum in einer ruhigen Umgebung suchen, der jedoch dennoch in der Nähe aller Annehmlichkeiten des täglichen Lebens liegen soll. Diese Wohnung stellt eine perfekte Gelegenheit für eine Kapitalanlage oder zum Wohnen in einem neuen, modernen Gebäude in bester Lage dar!
Bei allen unseren Angeboten sind die Preise identisch mit dem Direktkauf bei der Agentur/dem Entwickler in Kroatien, da wir der offizielle Vertreter dieser Agenturen auf dem tschechischen, slowakischen, deutschen und österreichischen Markt sind. Dies gilt ohne zusätzliche Zuschläge für deutschsprachige Dienstleistungen.
Sehr geehrte Kunden, die Besichtigung von Immobilien, die Mitteilung der Lage und andere detaillierte Informationen sind nur mit einem unterzeichneten Vermittlungsvertrag möglich, der die Grundlage für weitere Aktionen wie den Kauf einer Immobilie bildet. Alles steht im Einklang mit dem Gesetz über die Vermittlung beim Kauf von Immobilien. Der Käufer zahlt eine gesetzliche Vermittlungsprovision in Höhe von 3% (+ MwSt.) des vereinbarten Preises, und zwar nur im Falle des Kaufs der Immobilie. Sollte der Kauf nicht zustande kommen, ist der Vertrag für Sie nicht bindend und wird annulliert. Wenn Sie ernsthaft an der Immobilie interessiert sind, senden wir Ihnen den Vertrag auf Anfrage zu.
Wir werden Ihnen innerhalb von 24 Stunden antworten.
Wir bieten nur geprüfte Immobilien an.
Wir garantieren eine hohe Servicequalität.
Wir können Ihnen bei der Vermittlung von Unterkünften während der Besichtigungen helfen.
- Ich habe eine Immobilie aus dem Angebot ausgewählt
- Ich kontaktiere den Makler
- Ich unterschreibe einen Vertretungsvertrag - Details hier! (die Unterzeichnung des Vertrags ist gesetzlich vorgeschrieben)
- Ich richte eine OIB ein - Details hier (die Einrichtung ist gesetzlich vorgeschrieben)
- Besichtigungen vor Ort
- Unterzeichnung der Reservierung, des Kaufvertrags