TRIBUNJ, SOVLJA - Ferienwohnung mit Dachterrasse und herrlichem Meerblick
| Registrationsnummer | DN-45063 |
| Art des Angebots | Verkauf |
| Kategorie | Appartements |
| Bezirk | Šibensko-kninska |
| Gemeindeteil | Tribunj |
| Preis | 327 390 € |
| Gesamtfläche | 109 m² |
| Wohnfläche (Wohnung) | 109 m² |
| Bebaute Fläche und Hof | 12 m² |
| Gesamt bebaut fläche | 12 m² |
| Entfernung vom meer | 350 m |
| Strom | |
| Wasser | |
| Klimaanlage |
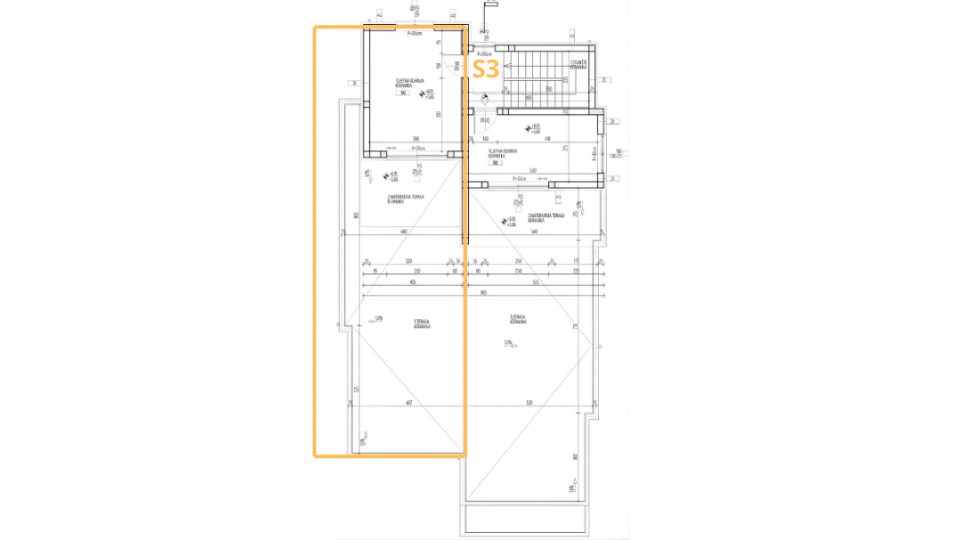
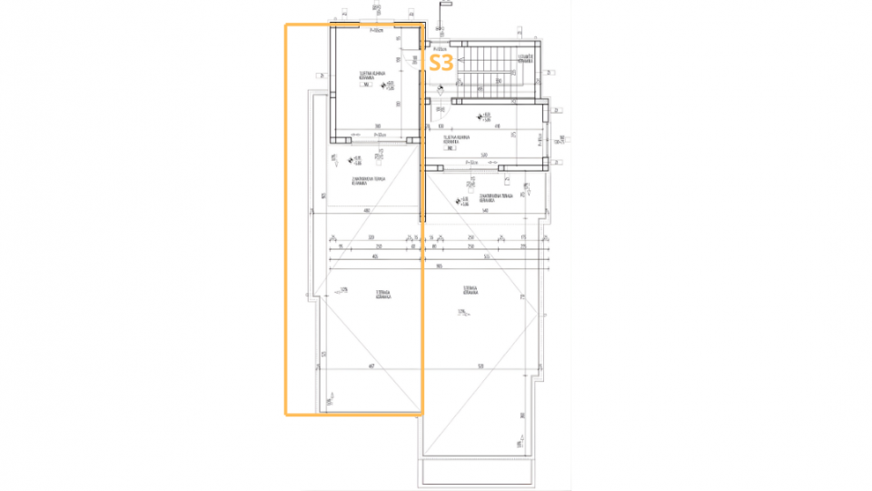
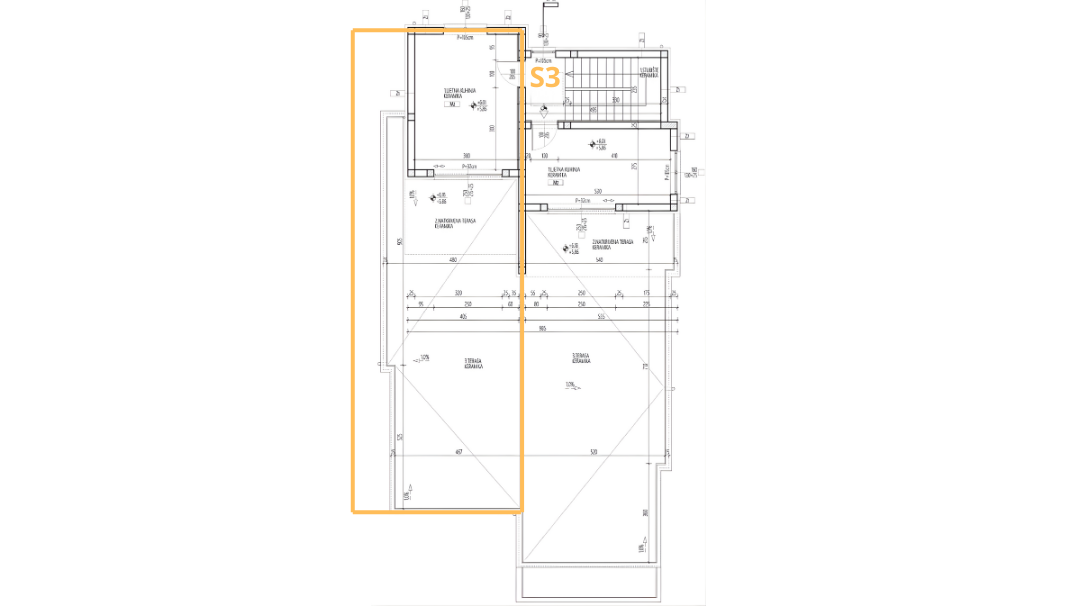
TRIBUNJ, SOVLJA – Wohnung mit Dachterrasse und herrlichem Meerblick In der kleinen Stadt Sovlje bei Tribunj steht eine Maisonette-Wohnung mit Dachterrasse in einem Neubau zum Verkauf. Die Wohnung befindet sich in einem kleineren Wohngebäude mit insgesamt vier Wohneinheiten. Das Gebäude erstreckt sich über drei Etagen: Erdgeschoss, 1. Obergeschoss und 2. Obergeschoss mit Dachterrasse. Zwei Wohnungen befinden sich im Erdgeschoss, die anderen beiden im 1. Obergeschoss. Jede Wohnung verfügt über eine eigene Dachterrasse. Wohnung S3 bietet eine Gesamtfläche von 109,13 m² (81,33 m² Wohnfläche + 66,62 m² Terrasse + 12 m² Stellplatz) und erstreckt sich über das 1. und 2. Obergeschoss. Die Wohnung ist nach Südwesten ausgerichtet. Im ersten Obergeschoss befinden sich zwei Schlafzimmer, ein Badezimmer, ein Flur, eine Wohnküche und ein offener Wohnbereich mit Zugang zu einer 9,44 m² großen, überdachten Terrasse mit Meerblick. Das zweite Obergeschoss – die Dachterrasse – ist über eine gemeinsame Innentreppe erreichbar und besteht aus einer 18,56 m² großen Sommerküche sowie einer 57,18 m² großen, teilweise überdachten Dachterrasse mit herrlichem Panoramablick auf das Meer. Zur Wohnung gehört ein Stellplatz im Innenhof des Gebäudes; ein weiterer Stellplatz kann optional erworben werden. Die Wohnungen sind mit Klimaanlage in allen Räumen, elektrischer Fußbodenheizung im Wohnzimmer und Badezimmer, Sicherheitstüren, hochwertigen PVC-Fenstern und -Türen in Anthrazit mit elektrischen Rollläden und Insektenschutzgittern, einer Wärmedämmung von mindestens 10 cm, hochwertigen Fliesen in allen Räumen und modernen Badezimmerarmaturen ausgestattet. Die geplante Fertigstellung und der Einzug sind für Ende 2026 vorgesehen. Das Anwesen befindet sich in ruhiger Lage, nur 400 Meter vom Meer und dem Stadtzentrum entfernt. Die Umgebung ist geprägt von einer unberührten mediterranen Landschaft mit Feldern, Karst, Olivenbäumen und Pinien, was diesen Ort besonders reizvoll und authentisch macht. Vodice ist nur wenige Kilometer entfernt, das Zentrum von Šibenik erreichen Sie nach 16 km, den Flughafen Zadar nach 58 km und den Flughafen Split nach 66 km. Dadurch ist die Lage hervorragend angebunden. Die Nationalparks Krka und Kornati sowie der Vrana-See befinden sich ebenfalls in der Nähe. Tribunj ist ein malerisches Fischerdorf und Touristenzentrum unweit von Vodice und Šibenik. Es ist bekannt für sein authentisches mediterranes Flair und seinen schönen Yachthafen. Charakteristisch sind der alte Steinkern auf einer kleinen Insel, die engen Gassen und die traditionelle Architektur. Der Ort bietet einen erholsamen Urlaub mit sauberen Stränden, authentischer Gastronomie und abwechslungsreichen Veranstaltungen wie Eselrennen. Für weitere Informationen oder zur Vereinbarung eines Besichtigungstermins kontaktieren Sie uns bitte.
Bei allen unseren Angeboten sind die Preise identisch mit dem Direktkauf bei der Agentur/dem Entwickler in Kroatien, da wir der offizielle Vertreter dieser Agenturen auf dem tschechischen, slowakischen, deutschen und österreichischen Markt sind. Dies gilt ohne zusätzliche Zuschläge für deutschsprachige Dienstleistungen.
Sehr geehrte Kunden, die Besichtigung von Immobilien, die Mitteilung der Lage und andere detaillierte Informationen sind nur mit einem unterzeichneten Vermittlungsvertrag möglich, der die Grundlage für weitere Aktionen wie den Kauf einer Immobilie bildet. Alles steht im Einklang mit dem Gesetz über die Vermittlung beim Kauf von Immobilien. Der Käufer zahlt eine gesetzliche Vermittlungsprovision in Höhe von 3% (+ MwSt.) des vereinbarten Preises, und zwar nur im Falle des Kaufs der Immobilie. Sollte der Kauf nicht zustande kommen, ist der Vertrag für Sie nicht bindend und wird annulliert. Wenn Sie ernsthaft an der Immobilie interessiert sind, senden wir Ihnen den Vertrag auf Anfrage zu.
Wir werden Ihnen innerhalb von 24 Stunden antworten.
Wir bieten nur geprüfte Immobilien an.
Wir garantieren eine hohe Servicequalität.
Wir können Ihnen bei der Vermittlung von Unterkünften während der Besichtigungen helfen.
- Ich habe eine Immobilie aus dem Angebot ausgewählt
- Ich kontaktiere den Makler
- Ich unterschreibe einen Vertretungsvertrag - Details hier! (die Unterzeichnung des Vertrags ist gesetzlich vorgeschrieben)
- Ich richte eine OIB ein - Details hier (die Einrichtung ist gesetzlich vorgeschrieben)
- Besichtigungen vor Ort
- Unterzeichnung der Reservierung, des Kaufvertrags