ZADAR, PETRČANE - Neubau 2. Reihe zum Meer! Punta Skala! S2
| Registrationsnummer | DN-45732 |
| Art des Angebots | Verkauf |
| Kategorie | Appartements |
| Bezirk | Zadarska |
| Gemeindeteil | Zadar - Okolica |
| Preis | 408 980 € |
| Gesamtfläche | 78 m² |
| Wohnfläche (Wohnung) | 78 m² |
| Entfernung vom meer | 25 m |
| Strom | |
| Wasser | |
| Abfall | |
| Klimaanlage | |
| Heizung | ano |
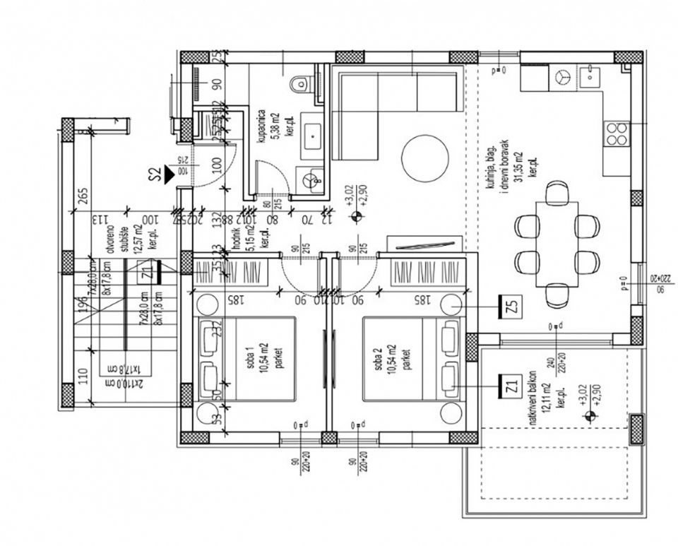
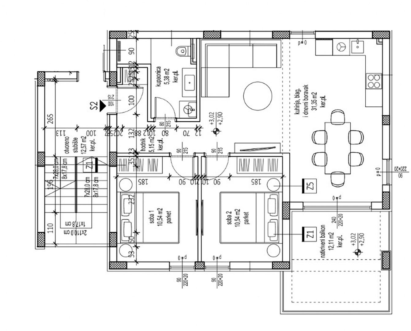
ZADAR, PETRČANE – Neubau in zweiter Reihe zum Meer! Punta Skala! S2 In exklusiver, einzigartiger Lage befindet sich ein außergewöhnlicher Neubau in zweiter Reihe zum Meer! Zum Verkauf stehen vier hochwertige Apartments, jedes mit zwei Parkplätzen, einer davon überdacht. Apartment S2 befindet sich im ersten Obergeschoss im nordwestlichen Teil des Gebäudes und besteht aus: Küche, Ess- und Wohnzimmer | 31,35 m² Schlafzimmer 1 | 10,54 m² Schlafzimmer 2 | 10,54 m² Badezimmer | 5,38 m² Flur | 5,15 m² Gesamtwohnfläche: 62,96 m² Zur Immobilie gehören außerdem: überdachter Balkon | 12,11 m² überdachter Parkplatz | 13,75 m² unüberdachter Parkplatz | 13,75 m² Die Gesamtnutzfläche der Wohnung S2 beträgt 78,65 m². Der großzügige, offene Wohnbereich mit angrenzender Küche und Essbereich schafft einen modernen und hellen Raum, ideal zum Entspannen und geselligen Beisammensein. Eine große Glaswand sorgt für viel Tageslicht und Zugang zu einem überdachten Balkon. Zwei komfortable Schlafzimmer bieten ausreichend Platz für Doppelbetten. Für eine optimale Raumausnutzung empfiehlt sich der Einbau maßgefertigter Kleiderschränke. Die geräumige, überdachte Terrasse ist der perfekte Ort, um die Natur zu genießen – ob beim Morgenkaffee, gemeinsamen Mahlzeiten oder entspannten Abenden, geschützt vor Sonne und Wind. Alle Wohnungen sind mit Parkettböden und hochwertigen Keramikfliesen ausgestattet. Im Preis inbegriffen sind eine hochwertige italienische Küche sowie ein voll ausgestattetes Badezimmer. Möglichkeit zum Erwerb einer 71,59 m² großen Dachterrasse mit Meerblick Die Bauarbeiten werden voraussichtlich Ende 2026 abgeschlossen sein. Mit über 152 Sonnentagen im Jahr zählt Petrčane zu den sonnigsten Orten der Region Zadar. Im Sommer verwandelt sich das malerische Dorf in ein lebhaftes Touristenzentrum, das Besucher aus aller Welt anzieht. Die über 5 Kilometer lange Küste bietet eine Vielzahl gepflegter Strände – Kies-, Sand- und gepflasterte Strände – umgeben von duftenden Pinienwäldern, die natürlichen Schatten spenden. Zu den bekanntesten Stränden zählen Punta Radman, Žal, Punta Skala und Pinija. Jeder Strand besticht durch seinen eigenen Charme und bietet Annehmlichkeiten für Familien, Sportler und Ruhesuchende. In Punta Radman und Punta Skala befinden sich zwei Hotelanlagen mit einem vielfältigen Angebot an Unterkünften, Wellness- und Sporteinrichtungen, die sich durch ihren hohen Servicestandard und ihre attraktive Lage direkt am Meer auszeichnen.
Bei allen unseren Angeboten sind die Preise identisch mit dem Direktkauf bei der Agentur/dem Entwickler in Kroatien, da wir der offizielle Vertreter dieser Agenturen auf dem tschechischen, slowakischen, deutschen und österreichischen Markt sind. Dies gilt ohne zusätzliche Zuschläge für deutschsprachige Dienstleistungen.
Sehr geehrte Kunden, die Besichtigung von Immobilien, die Mitteilung der Lage und andere detaillierte Informationen sind nur mit einem unterzeichneten Vermittlungsvertrag möglich, der die Grundlage für weitere Aktionen wie den Kauf einer Immobilie bildet. Alles steht im Einklang mit dem Gesetz über die Vermittlung beim Kauf von Immobilien. Der Käufer zahlt eine gesetzliche Vermittlungsprovision in Höhe von 3% (+ MwSt.) des vereinbarten Preises, und zwar nur im Falle des Kaufs der Immobilie. Sollte der Kauf nicht zustande kommen, ist der Vertrag für Sie nicht bindend und wird annulliert. Wenn Sie ernsthaft an der Immobilie interessiert sind, senden wir Ihnen den Vertrag auf Anfrage zu.
Wir werden Ihnen innerhalb von 24 Stunden antworten.
Wir bieten nur geprüfte Immobilien an.
Wir garantieren eine hohe Servicequalität.
Wir können Ihnen bei der Vermittlung von Unterkünften während der Besichtigungen helfen.
- Ich habe eine Immobilie aus dem Angebot ausgewählt
- Ich kontaktiere den Makler
- Ich unterschreibe einen Vertretungsvertrag - Details hier! (die Unterzeichnung des Vertrags ist gesetzlich vorgeschrieben)
- Ich richte eine OIB ein - Details hier (die Einrichtung ist gesetzlich vorgeschrieben)
- Besichtigungen vor Ort
- Unterzeichnung der Reservierung, des Kaufvertrags