ZADAR, PRIVLAKA – Apartment mit Pool 50 Meter vom Sandstrand entfernt!
| Registrationsnummer | DN-40625 |
| Art des Angebots | Verkauf |
| Kategorie | Appartements |
| Bezirk | Zadarska |
| Gemeindeteil | Privlaka |
| Preis | 490 000 € |
| Gesamtfläche | 90 m² |
| Wohnfläche (Wohnung) | 90 m² |
| Entfernung vom meer | 50 m |
| Strom | |
| Wasser | |
| Klimaanlage |
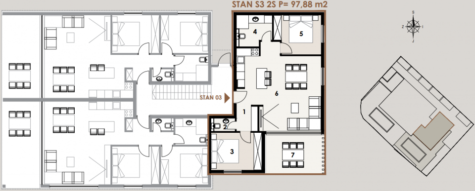
ZADAR, PRIVLAKA – Apartment mit Pool, 50 Meter vom Sandstrand entfernt! S3. In außergewöhnlicher Lage, nur 50 Meter von einem wunderschönen Sandstrand mit Café entfernt, befindet sich dieses moderne Neubaugebäude mit insgesamt acht Apartments, perfekt integriert in eine ruhige und luxuriöse Umgebung. Das Gebäude besticht durch modernes Design und höchste Baustandards – die gesamte Außenkonstruktion besteht aus Stahlbeton, was höchste Festigkeit, Langlebigkeit und Witterungsbeständigkeit gewährleistet. Alle Apartments bieten Meerblick und sind mit elektrischen Rollläden, Moskitonetzen, Dreifachglas und Hebe-Schiebe-Wänden ausgestattet, die für viel Licht und ein ungestörtes Naturerlebnis sorgen. Das Apartment S3 befindet sich im Erdgeschoss und verfügt über zwei Schlafzimmer, ein modernes Badezimmer mit Fußbodenheizung, ein zusätzliches WC, ein Wohnzimmer mit Zugang zur überdachten Terrasse und einen privaten Garten mit Pool und Meerblick. Ein privater Parkplatz ist ebenfalls vorhanden. Alle Zimmer sind klimatisiert, und für maximalen Komfort wurden modernste Fenster und Türen eingebaut. Das Gebäude verfügt über drei Wohnungen im Erdgeschoss, jeweils mit Garten und Terrasse, zwei Wohnungen verfügen zudem über einen eigenen Pool. Die Penthouse-Wohnungen im zweiten Stock bieten zusätzlich begehbare Dachterrassen mit Panoramablick. Der Verkäufer ist eine juristische Person, was bedeutet, dass der Käufer von der Grundsteuer befreit ist. Die geplante Fertigstellung ist im Herbst 2026. Die Lage dieser Immobilie steigert den Wert zusätzlich durch die Nähe zur historischen Stadt Nin, dem beliebten Ferienort Zaton, der Insel Vir und der wunderschönen Stadt Zadar, die nur zwanzig Autominuten entfernt ist. Privlaka ist ein zunehmend gefragter Ort für Urlaub und Leben – eine Kombination aus Ruhe, natürlicher Schönheit und moderner Infrastruktur. Für weitere Informationen und Besichtigungen kontaktieren Sie uns bitte – wir helfen Ihnen gerne, Ihr Traumhaus am Meer zu finden.
Bei allen unseren Angeboten sind die Preise identisch mit dem Direktkauf bei der Agentur/dem Entwickler in Kroatien, da wir der offizielle Vertreter dieser Agenturen auf dem tschechischen, slowakischen, deutschen und österreichischen Markt sind. Dies gilt ohne zusätzliche Zuschläge für deutschsprachige Dienstleistungen.
Sehr geehrte Kunden, die Besichtigung von Immobilien, die Mitteilung der Lage und andere detaillierte Informationen sind nur mit einem unterzeichneten Vermittlungsvertrag möglich, der die Grundlage für weitere Aktionen wie den Kauf einer Immobilie bildet. Alles steht im Einklang mit dem Gesetz über die Vermittlung beim Kauf von Immobilien. Der Käufer zahlt eine gesetzliche Vermittlungsprovision in Höhe von 3% (+ MwSt.) des vereinbarten Preises, und zwar nur im Falle des Kaufs der Immobilie. Sollte der Kauf nicht zustande kommen, ist der Vertrag für Sie nicht bindend und wird annulliert. Wenn Sie ernsthaft an der Immobilie interessiert sind, senden wir Ihnen den Vertrag auf Anfrage zu.
Wir werden Ihnen innerhalb von 24 Stunden antworten.
Wir bieten nur geprüfte Immobilien an.
Wir garantieren eine hohe Servicequalität.
Wir können Ihnen bei der Vermittlung von Unterkünften während der Besichtigungen helfen.
- Ich habe eine Immobilie aus dem Angebot ausgewählt
- Ich kontaktiere den Makler
- Ich unterschreibe einen Vertretungsvertrag - Details hier! (die Unterzeichnung des Vertrags ist gesetzlich vorgeschrieben)
- Ich richte eine OIB ein - Details hier (die Einrichtung ist gesetzlich vorgeschrieben)
- Besichtigungen vor Ort
- Unterzeichnung der Reservierung, des Kaufvertrags