ZADAR, PRIVLAKA - Elegante Wohnung mit Garten 110 Meter vom Meer entfernt! S1
| Registrationsnummer | DN-35959 |
| Art des Angebots | Verkauf |
| Kategorie | Appartements |
| Bezirk | Zadarska |
| Gemeindeteil | Privlaka |
| Preis | 279 741 € |
| Gesamtfläche | 84 m² |
| Wohnfläche (Wohnung) | 84 m² |
| Bebaute Fläche und Hof | 129 m² |
| Gesamt bebaut fläche | 129 m² |
| Entfernung vom meer | 110 m |
| Strom | |
| Wasser | |
| Klimaanlage |
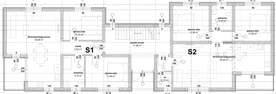
ZADAR, PRIVLAKA - Elegante Wohnung mit Garten 110 Meter vom Meer entfernt! S1. Eine schöne Wohnung zum Verkauf in Privlaka, im Erdgeschoss eines neuen Gebäudes gelegen, in idealer Lage, nur 110 Meter vom Meer entfernt, mit wunderschönem Blick auf das Meer. Dieses moderne Apartment bietet die perfekte Mischung aus Luxus und Komfort mit einer sorgfältig durchdachten Aufteilung, die zwei geräumige Schlafzimmer, ein stilvolles Badezimmer, eine geräumige Küche und ein offenes Ess- und Wohnzimmer umfasst. Die Besonderheit dieser Wohnung ist ein großer Garten, der Privatsphäre und Entspannung bietet, sowie eine überdachte Terrasse, auf der Sie das ganze Jahr über die Natur genießen können. Der Meerblick unterstreicht den einzigartigen Reiz dieser Immobilie zusätzlich. Die gesamte Wohnung ist mit Fußbodenheizung ausgestattet, während alle Räume für maximalen Komfort zu jeder Jahreszeit klimatisiert sind. Zur Wohnung gehören zwei Parkplätze, was für zusätzliche Praktikabilität sorgt. Diese Immobilie ist die perfekte Wahl für einen Familienurlaub, einen Urlaub oder als Investition für eine touristische Vermietung. Kontaktieren Sie uns und vereinbaren Sie einen Besichtigungstermin und überzeugen Sie sich selbst von allen Vorzügen dieser außergewöhnlichen Wohnung!
Bei allen unseren Angeboten sind die Preise identisch mit dem Direktkauf bei der Agentur/dem Entwickler in Kroatien, da wir der offizielle Vertreter dieser Agenturen auf dem tschechischen, slowakischen, deutschen und österreichischen Markt sind. Dies gilt ohne zusätzliche Zuschläge für deutschsprachige Dienstleistungen.
Sehr geehrte Kunden, die Besichtigung von Immobilien, die Mitteilung der Lage und andere detaillierte Informationen sind nur mit einem unterzeichneten Vermittlungsvertrag möglich, der die Grundlage für weitere Aktionen wie den Kauf einer Immobilie bildet. Alles steht im Einklang mit dem Gesetz über die Vermittlung beim Kauf von Immobilien. Der Käufer zahlt eine gesetzliche Vermittlungsprovision in Höhe von 3% (+ MwSt.) des vereinbarten Preises, und zwar nur im Falle des Kaufs der Immobilie. Sollte der Kauf nicht zustande kommen, ist der Vertrag für Sie nicht bindend und wird annulliert. Wenn Sie ernsthaft an der Immobilie interessiert sind, senden wir Ihnen den Vertrag auf Anfrage zu.
Wir werden Ihnen innerhalb von 24 Stunden antworten.
Wir bieten nur geprüfte Immobilien an.
Wir garantieren eine hohe Servicequalität.
Wir können Ihnen bei der Vermittlung von Unterkünften während der Besichtigungen helfen.
- Ich habe eine Immobilie aus dem Angebot ausgewählt
- Ich kontaktiere den Makler
- Ich unterschreibe einen Vertretungsvertrag - Details hier! (die Unterzeichnung des Vertrags ist gesetzlich vorgeschrieben)
- Ich richte eine OIB ein - Details hier (die Einrichtung ist gesetzlich vorgeschrieben)
- Besichtigungen vor Ort
- Unterzeichnung der Reservierung, des Kaufvertrags