ZADAR, PRIVLAKA – Exklusive Gelegenheit für ein luxuriöses Leben direkt am Strand in einem modernen Neubau! S2
| Registrationsnummer | DN-32288 |
| Art des Angebots | Verkauf |
| Kategorie | Appartements |
| Bezirk | Zadarska |
| Gemeindeteil | Privlaka |
| Preis | 309 435 € |
| Gesamtfläche | 88 m² |
| Wohnfläche (Wohnung) | 88 m² |
| Bebaute Fläche und Hof | 58 m² |
| Gesamt bebaut fläche | 58 m² |
| Entfernung vom meer | 120 m |
| Strom | |
| Wasser | |
| Klimaanlage |
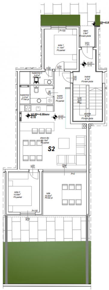
ZADAR, PRIVLAKA – Exklusive Gelegenheit für ein luxuriöses Leben direkt am Strand in einem modernen Neubau! S2 Willkommen in Ihrem zukünftigen Traumhaus! Wir präsentieren Ihnen das Apartment S2, das eine Kombination aus erstklassiger, moderner Architektur und der natürlichen Schönheit der Adriaküste verkörpert. In einer äußerst attraktiven Lage, nur 120 Meter vom glitzernden Strand entfernt, bietet dieses Apartment alles, was Sie für einen luxuriösen Lebensstil voller Komfort und Eleganz benötigen. Diese im Erdgeschoss eines exklusiven Neubaus gelegene Immobilie erstreckt sich auf großzügige 88,41 m2 Nettowohnfläche. Beim Betreten der Wohnung werden Sie von einem geräumigen und hellen Wohnzimmer begrüßt, dem perfekten Ort zum Entspannen und um Zeit mit Familie und Freunden zu verbringen. Das Wohnzimmer verfügt über einen wunderschönen Blick auf den eigenen Garten von 46,21 m2, wo Sie die frische Luft und Privatsphäre genießen können. Die Wohnung verfügt über zwei geräumige Schlafzimmer, bei deren Gestaltung besonderer Wert auf Komfort und Privatsphäre gelegt wurde. Jedes Zimmer strahlt Wärme und Eleganz aus und bietet den perfekten Rückzugsort zum Entspannen. Die beiden luxuriösen Badezimmer sind mit modernen Sanitäranlagen ausgestattet und auf maximale Funktionalität und Stil ausgelegt. Genießen Sie den Komfort und die Eleganz jedes Raumes dank einer modernen Klimaanlage, die in jedem Winkel Ihres neuen Zuhauses für eine optimale Temperatur sorgt. Die gesamte Wohnung ist mit einer Fußbodenheizung ausgestattet, die Ihnen das ganze Jahr über ein angenehmes Wohngefühl bietet. Elektrische Jalousien und Moskitonetze auf PVC-Fenstern sorgen für Benutzerfreundlichkeit und Schutz vor unerwünschten äußeren Einflüssen. Die Architektur des Gebäudes zeichnet sich durch Einzigartigkeit und Eleganz aus und macht es zu einem echten architektonischen Juwel in dieser Gegend. Die Kombination aus modernem Design und erstklassiger Bauqualität vermittelt Ihnen ein Gefühl von Sicherheit und Langlebigkeit sowie den Stolz, eine Immobilie dieser Art zu besitzen. Zu dieser exklusiven Immobilie gehört ein Parkplatz, was in der heutigen dynamischen Welt äußerst wichtig ist. Verpassen Sie nicht die Gelegenheit, Eigentümer dieser Wohnung in einer Oase des Luxus und Komforts zu werden. Die Bauarbeiten sollen im Frühjahr 2026 abgeschlossen sein, so dass Sie genügend Zeit haben, Ihren perfekten Umzug zu planen. Kontaktieren Sie uns noch heute und sichern Sie sich ein Leben in Luxus, in dem alle Details sorgfältig entworfen wurden, um Ihnen maximalen Komfort und Zufriedenheit zu bieten. Dies ist Ihr Moment, Ihr Traumort – Ihre neue Adresse am Meer!
Bei allen unseren Angeboten sind die Preise identisch mit dem Direktkauf bei der Agentur/dem Entwickler in Kroatien, da wir der offizielle Vertreter dieser Agenturen auf dem tschechischen, slowakischen, deutschen und österreichischen Markt sind. Dies gilt ohne zusätzliche Zuschläge für deutschsprachige Dienstleistungen.
Sehr geehrte Kunden, die Besichtigung von Immobilien, die Mitteilung der Lage und andere detaillierte Informationen sind nur mit einem unterzeichneten Vermittlungsvertrag möglich, der die Grundlage für weitere Aktionen wie den Kauf einer Immobilie bildet. Alles steht im Einklang mit dem Gesetz über die Vermittlung beim Kauf von Immobilien. Der Käufer zahlt eine gesetzliche Vermittlungsprovision in Höhe von 3% (+ MwSt.) des vereinbarten Preises, und zwar nur im Falle des Kaufs der Immobilie. Sollte der Kauf nicht zustande kommen, ist der Vertrag für Sie nicht bindend und wird annulliert. Wenn Sie ernsthaft an der Immobilie interessiert sind, senden wir Ihnen den Vertrag auf Anfrage zu.
Wir werden Ihnen innerhalb von 24 Stunden antworten.
Wir bieten nur geprüfte Immobilien an.
Wir garantieren eine hohe Servicequalität.
Wir können Ihnen bei der Vermittlung von Unterkünften während der Besichtigungen helfen.
- Ich habe eine Immobilie aus dem Angebot ausgewählt
- Ich kontaktiere den Makler
- Ich unterschreibe einen Vertretungsvertrag - Details hier! (die Unterzeichnung des Vertrags ist gesetzlich vorgeschrieben)
- Ich richte eine OIB ein - Details hier (die Einrichtung ist gesetzlich vorgeschrieben)
- Besichtigungen vor Ort
- Unterzeichnung der Reservierung, des Kaufvertrags