ZADAR, SUKOŠAN – Wunderschönes neues Gebäude 200 Meter vom Strand entfernt mit Meerblick! S2
| Registrationsnummer | DN-38479 |
| Art des Angebots | Verkauf |
| Kategorie | Appartements |
| Bezirk | Zadarska |
| Gemeindeteil | Sukošan |
| Preis | 326 305 € |
| Gesamtfläche | 93 m² |
| Wohnfläche (Wohnung) | 93 m² |
| Entfernung vom meer | 200 m |
| Strom | |
| Wasser | |
| Klimaanlage |
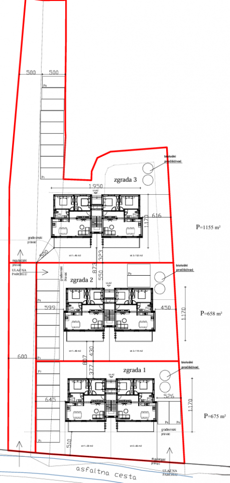
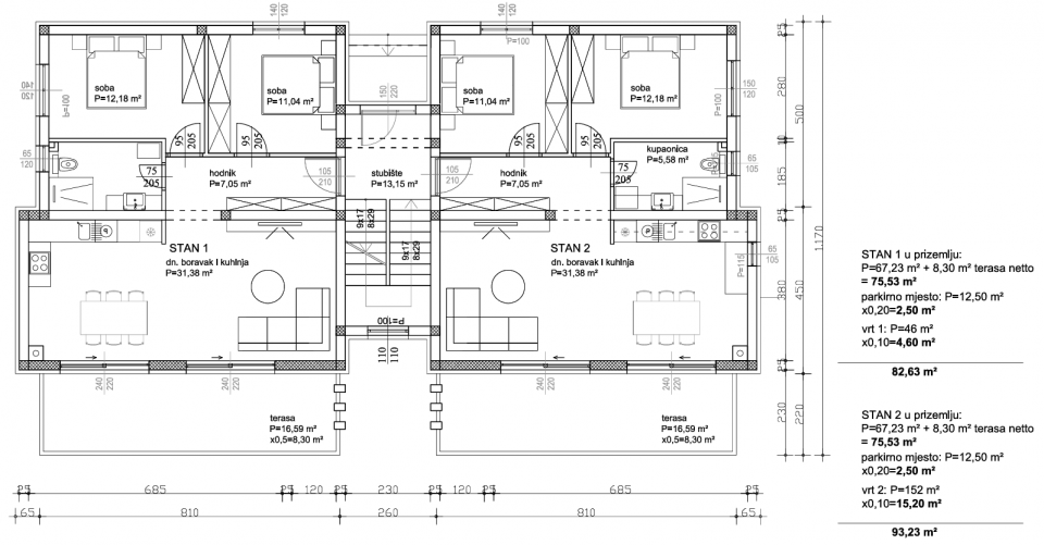
ZADAR, SUKOŠAN – Wunderschönes neues Gebäude 200 Meter vom Strand entfernt mit Meerblick! S2 Im Herzen von Sukošan, in ruhiger Lage, nur 200 Meter vom Strand entfernt, befindet sich ein moderner Neubau, der die perfekte Kombination aus Luxus, Funktionalität und mediterranem Lebensstil bietet. Das nach höchsten Baustandards (4 Sterne) konzipierte Gebäude mit insgesamt sechs Wohnungen bietet außergewöhnliche Wohnqualität in Meeresnähe und verfügt zu jeder Wohnung über einen eigenen Parkplatz mit der Option, einen weiteren zu erwerben. Alle Apartments sind sorgfältig auf moderne Bedürfnisse zugeschnitten und verfügen über zwei komfortable Schlafzimmer, ein elegantes Badezimmer, ein geräumiges Wohnzimmer, eine Küche und einen Essbereich. Die Wohnungen im Erdgeschoss bieten teilweisen Meerblick und einen privaten Garten, während die Wohnungen in den oberen Stockwerken einen atemberaubenden Panoramablick bieten und die Wohnungen im zweiten Stock über private Dachterrassen verfügen – der ideale Ort für abendliche Zusammenkünfte bei Sonnenuntergang. Bei der Bauqualität und der Materialauswahl gibt es keine Kompromisse: Thermo-Aluminium-Tischlerei, elektrische Rollläden und Moskitonetze sorgen für Komfort und Langlebigkeit. Fußbodenheizung in Bädern und Wohnräumen, hochwertiges Eichenparkett in den Zimmern und hochwertiges italienisches Feinsteinzeug von Marazzi und Mirage unterstreichen den luxuriösen Touch jedes Raumes zusätzlich. In jedem Zimmer und Wohnzimmer sind Mitsubishi-Klimaanlagen (Multi-Split-System) installiert, während das Treppenhaus und der Eingang des Gebäudes mit Naturstein verkleidet sind. Sanitärkeramik der renommierten Marke Villeroy&Boch und Sicherheitstüren sorgen zusätzlich für Sicherheit und Eleganz. Der Parkplatz ist aus Betonblöcken gebaut und die gärtnerisch gestalteten Gärten vervollständigen den Eindruck einer luxuriösen mediterranen Oase. Die Konstruktion des Gebäudes besteht aus Stahlbeton mit hochwertigen Ziegelwänden und die Fertigstellung der Arbeiten ist für Mitte 2026 geplant. Sukošan ist ein malerischer Ort, der Ruhe, natürliche Schönheit, hervorragende Verbindungen mit der Stadt Zadar und ein reichhaltiges Angebot an Restaurants, Jachthäfen und Einrichtungen bietet. Zadar selbst, nur zehn Autominuten entfernt, begeistert mit seiner Geschichte, seinem kulturellen Erbe und seinem modernen Lebensrhythmus – einer perfekten Mischung aus Alt und Neu. Für weitere Informationen und eine Führung kontaktieren Sie uns. Finden Sie Ihren idealen Platz an der Sonne in Sukošan.
Bei allen unseren Angeboten sind die Preise identisch mit dem Direktkauf bei der Agentur/dem Entwickler in Kroatien, da wir der offizielle Vertreter dieser Agenturen auf dem tschechischen, slowakischen, deutschen und österreichischen Markt sind. Dies gilt ohne zusätzliche Zuschläge für deutschsprachige Dienstleistungen.
Sehr geehrte Kunden, die Besichtigung von Immobilien, die Mitteilung der Lage und andere detaillierte Informationen sind nur mit einem unterzeichneten Vermittlungsvertrag möglich, der die Grundlage für weitere Aktionen wie den Kauf einer Immobilie bildet. Alles steht im Einklang mit dem Gesetz über die Vermittlung beim Kauf von Immobilien. Der Käufer zahlt eine gesetzliche Vermittlungsprovision in Höhe von 3% (+ MwSt.) des vereinbarten Preises, und zwar nur im Falle des Kaufs der Immobilie. Sollte der Kauf nicht zustande kommen, ist der Vertrag für Sie nicht bindend und wird annulliert. Wenn Sie ernsthaft an der Immobilie interessiert sind, senden wir Ihnen den Vertrag auf Anfrage zu.
Wir werden Ihnen innerhalb von 24 Stunden antworten.
Wir bieten nur geprüfte Immobilien an.
Wir garantieren eine hohe Servicequalität.
Wir können Ihnen bei der Vermittlung von Unterkünften während der Besichtigungen helfen.
- Ich habe eine Immobilie aus dem Angebot ausgewählt
- Ich kontaktiere den Makler
- Ich unterschreibe einen Vertretungsvertrag - Details hier! (die Unterzeichnung des Vertrags ist gesetzlich vorgeschrieben)
- Ich richte eine OIB ein - Details hier (die Einrichtung ist gesetzlich vorgeschrieben)
- Besichtigungen vor Ort
- Unterzeichnung der Reservierung, des Kaufvertrags