ZADAR, VRSI – Moderne Wohnung in Neubau im 1. Stock! Staffel 4
| Registrationsnummer | DN-36818 |
| Art des Angebots | Verkauf |
| Kategorie | Appartements |
| Bezirk | Zadarska |
| Gemeindeteil | Vrsi |
| Preis | 270 000 € |
| Gesamtfläche | 85 m² |
| Wohnfläche (Wohnung) | 85 m² |
| Bebaute Fläche und Hof | 723 m² |
| Gesamt bebaut fläche | 723 m² |
| Entfernung vom meer | 600 m |
| Strom | |
| Wasser | |
| Klimaanlage |
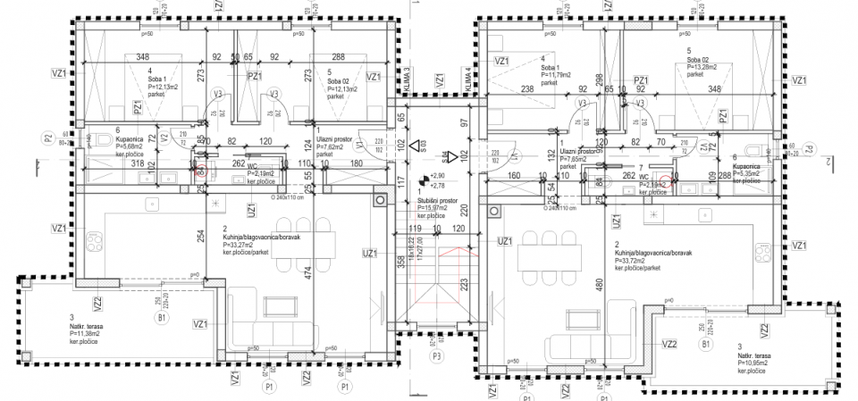
ZADAR, VRSI – Modern eingerichtete Wohnung in einem Neubau, S4 Zum Verkauf steht eine schöne Wohnung im ersten Stock, in unmittelbarer Nähe zum Meer gelegen. Es handelt sich um ein neues Gebäude mit 85 m2 Wohnfläche und dem zusätzlichen Vorteil einer Terrasse mit Aussicht. Die Wohnung besteht aus zwei geräumigen Schlafzimmern, einem eleganten Wohnzimmer, einem Badezimmer und einer Toilette. Besonderes Augenmerk wird auf Qualität und moderne Details gelegt: Die Wohnung ist mit elektrischen Rollläden, anthrazitfarbener Tischlerei mit Moskitonetzen und hebbaren Schiebewänden ausgestattet. Ein Parkplatz ist im Preis inbegriffen. Im Badezimmer und im Wohnzimmer ist eine Fußbodenheizung installiert, während Klimaanlagen in allen Räumen für eine angenehme Temperatur sorgen. Das Innere der Wohnung ist im Wohnzimmer, im WC und im Badezimmer mit erstklassigen rektifizierten Keramikfliesen ausgestattet, während in den Zimmern und im Flur hochwertiges Laminat verlegt ist. Innentüren in Weiß mit Magnetschlössern und versteckten Scharnieren tragen zur Eleganz des Raumes bei. Die Wohnung wird komplett möbliert, mit sorgfältig ausgewählten Möbeln und modernen Geräten, bezugsfertig verkauft. Dieses Apartment ist die ideale Wahl für diejenigen, die ein luxuriöses und funktionales Zuhause in der Nähe des Meeres mit allen Annehmlichkeiten moderner Bauweise suchen. Für weitere Informationen und um einen Besichtigungstermin zu vereinbaren, nehmen Sie gerne Kontakt mit uns auf.
Bei allen unseren Angeboten sind die Preise identisch mit dem Direktkauf bei der Agentur/dem Entwickler in Kroatien, da wir der offizielle Vertreter dieser Agenturen auf dem tschechischen, slowakischen, deutschen und österreichischen Markt sind. Dies gilt ohne zusätzliche Zuschläge für deutschsprachige Dienstleistungen.
Sehr geehrte Kunden, die Besichtigung von Immobilien, die Mitteilung der Lage und andere detaillierte Informationen sind nur mit einem unterzeichneten Vermittlungsvertrag möglich, der die Grundlage für weitere Aktionen wie den Kauf einer Immobilie bildet. Alles steht im Einklang mit dem Gesetz über die Vermittlung beim Kauf von Immobilien. Der Käufer zahlt eine gesetzliche Vermittlungsprovision in Höhe von 3% (+ MwSt.) des vereinbarten Preises, und zwar nur im Falle des Kaufs der Immobilie. Sollte der Kauf nicht zustande kommen, ist der Vertrag für Sie nicht bindend und wird annulliert. Wenn Sie ernsthaft an der Immobilie interessiert sind, senden wir Ihnen den Vertrag auf Anfrage zu.
Wir werden Ihnen innerhalb von 24 Stunden antworten.
Wir bieten nur geprüfte Immobilien an.
Wir garantieren eine hohe Servicequalität.
Wir können Ihnen bei der Vermittlung von Unterkünften während der Besichtigungen helfen.
- Ich habe eine Immobilie aus dem Angebot ausgewählt
- Ich kontaktiere den Makler
- Ich unterschreibe einen Vertretungsvertrag - Details hier! (die Unterzeichnung des Vertrags ist gesetzlich vorgeschrieben)
- Ich richte eine OIB ein - Details hier (die Einrichtung ist gesetzlich vorgeschrieben)
- Besichtigungen vor Ort
- Unterzeichnung der Reservierung, des Kaufvertrags