ZADAR, ZATON – Projekt mit 12 Wohnungen! Baugenehmigung vorhanden! Zweite Reihe zum Meer!
| Registrationsnummer | DN-45408 |
| Art des Angebots | Verkauf |
| Kategorie | Bauland |
| Bezirk | Zadarska |
| Gemeindeteil | Nin |
| Preis | 2 460 375 € |
| Preis pro m2 | 1 125 €/m² |
| Gesamtfläche | 2 187 m² |
| Entfernung vom meer | 50 m |
| Strom | |
| Wasser |
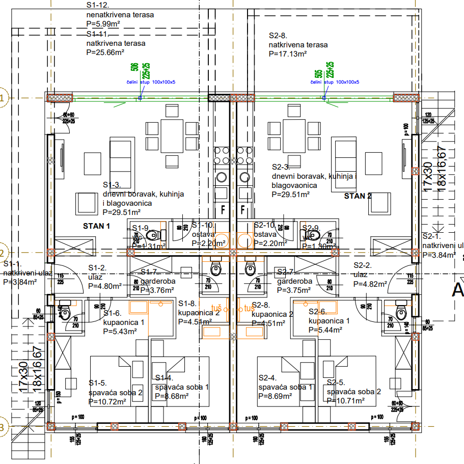
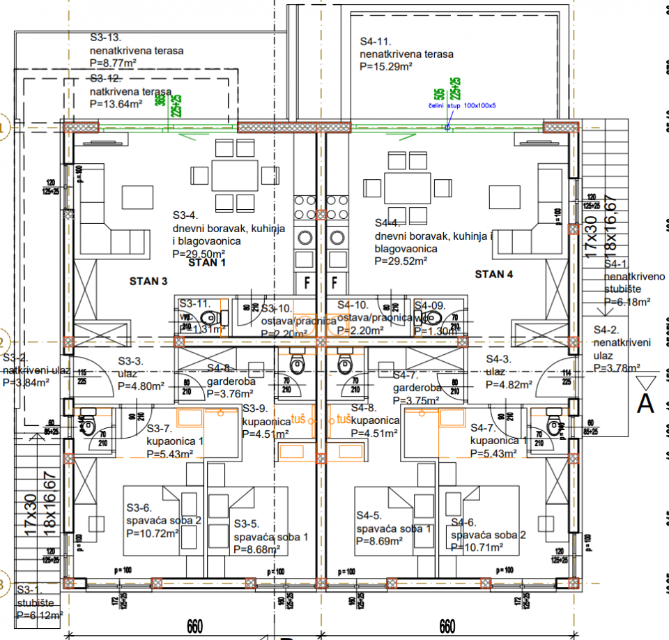
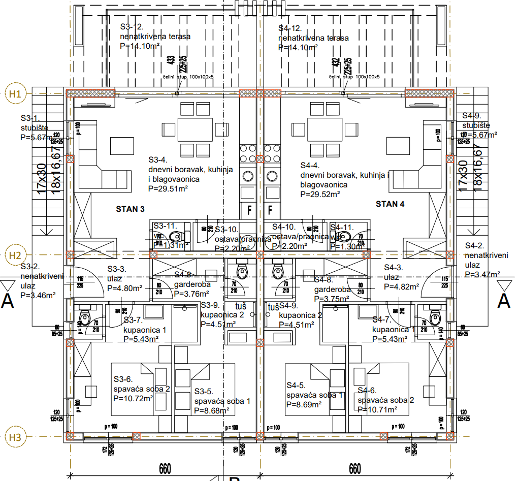
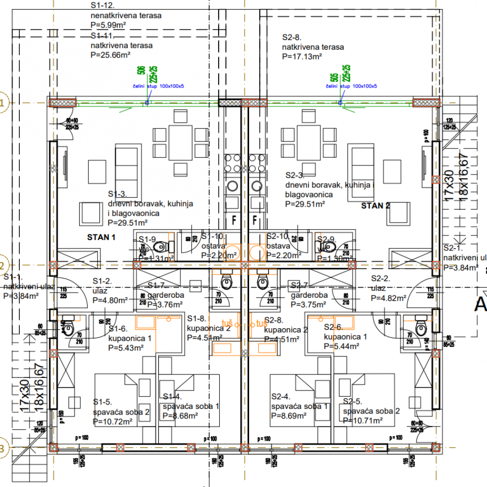
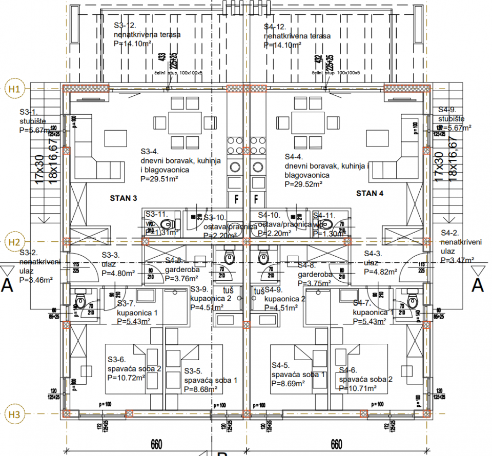
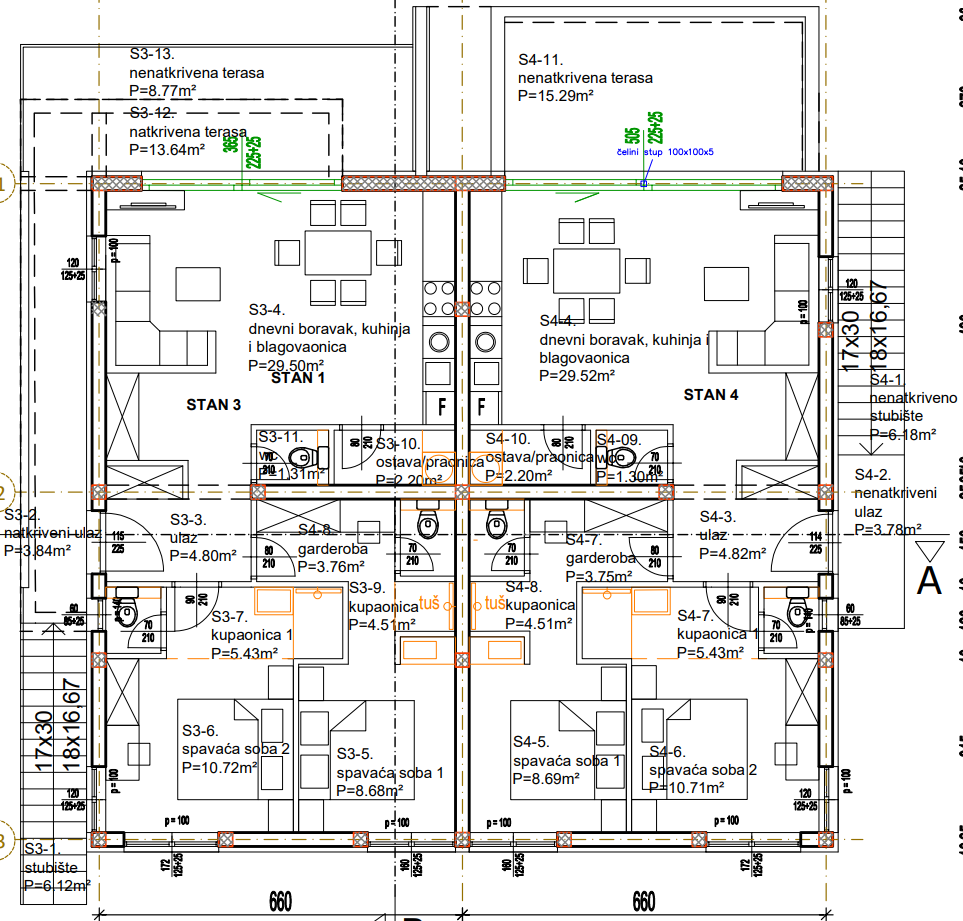
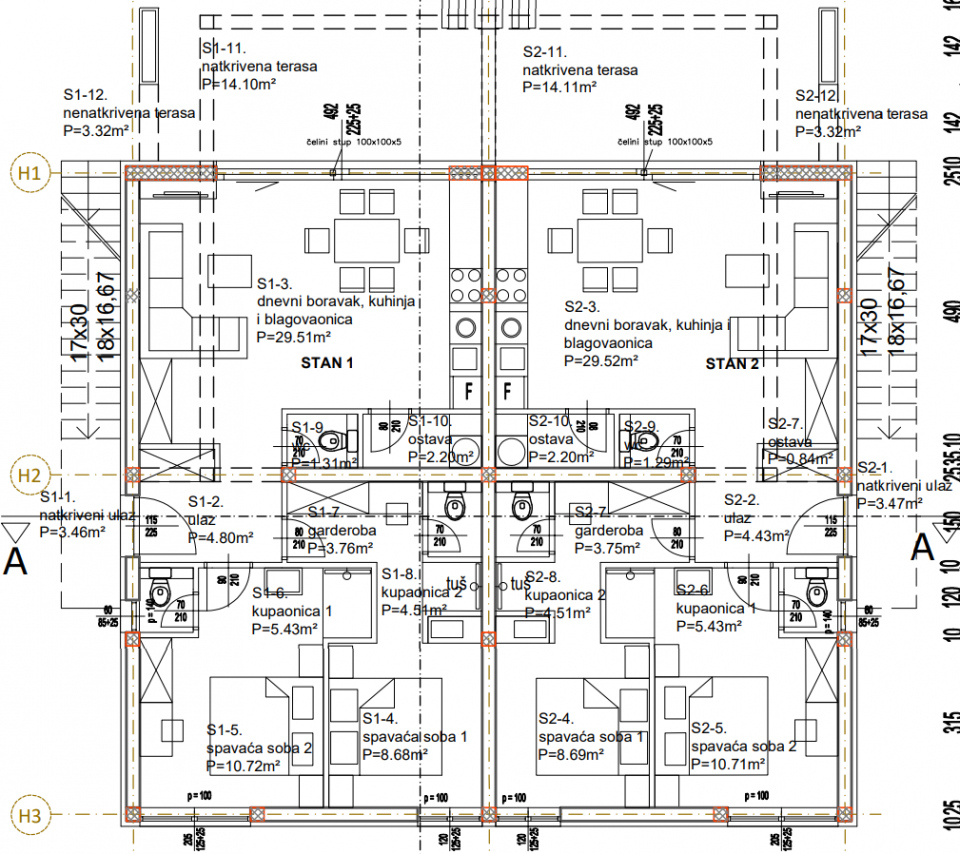
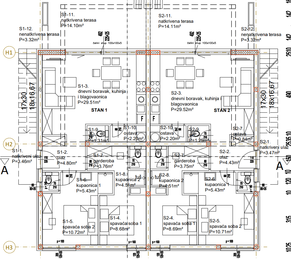
ZADAR, ZATON – Projekt mit 12 Wohnungen! Baugenehmigung! Zweite Reihe zum Meer! In der begehrten Lage von Zaton, Punta Zaton, steht ein exklusives Projekt zum Verkauf. Drei Grundstücke mit drei Gebäuden à vier Wohnungen – insgesamt zwölf Wohnungen – befinden sich in zweiter Reihe zum Meer. Meerblick ist bereits vom Erdgeschoss aus möglich, während in der ersten Reihe Villen mit Pool errichtet wurden. Für alle drei Gebäude liegt bereits eine Baugenehmigung vor. Dies ist ein großer Vorteil, da der Bau sofort ohne lange Wartezeit beginnen kann. Die Wohnungen sind komfortabel ausgestattet und verfügen jeweils über zwei Schlafzimmer mit eigenem Bad. Der Preis pro m² beträgt 900 € zzgl. MwSt. Zaton ist ein kleiner Ferienort, ideal für pure Entspannung und Erholung vom Alltagsstress. Er liegt zwischen den beiden historischen Städten Nin (2 km) und Zadar (12 km). Sandstrände im Schatten jahrhundertealter Pinien sind ideal für Familien mit Kindern. Wenn Sie Ruhe, kristallklares Meer, eine unberührte Unterwasserwelt, den Schatten von Pinienwäldern und unvergessliche Sonnenuntergänge suchen, ist Zaton der perfekte Ort für Ihren Urlaub. Liebe
Bei allen unseren Angeboten sind die Preise identisch mit dem Direktkauf bei der Agentur/dem Entwickler in Kroatien, da wir der offizielle Vertreter dieser Agenturen auf dem tschechischen, slowakischen, deutschen und österreichischen Markt sind. Dies gilt ohne zusätzliche Zuschläge für deutschsprachige Dienstleistungen.
Sehr geehrte Kunden, die Besichtigung von Immobilien, die Mitteilung der Lage und andere detaillierte Informationen sind nur mit einem unterzeichneten Vermittlungsvertrag möglich, der die Grundlage für weitere Aktionen wie den Kauf einer Immobilie bildet. Alles steht im Einklang mit dem Gesetz über die Vermittlung beim Kauf von Immobilien. Der Käufer zahlt eine gesetzliche Vermittlungsprovision in Höhe von 3% (+ MwSt.) des vereinbarten Preises, und zwar nur im Falle des Kaufs der Immobilie. Sollte der Kauf nicht zustande kommen, ist der Vertrag für Sie nicht bindend und wird annulliert. Wenn Sie ernsthaft an der Immobilie interessiert sind, senden wir Ihnen den Vertrag auf Anfrage zu.
Wir werden Ihnen innerhalb von 24 Stunden antworten.
Wir bieten nur geprüfte Immobilien an.
Wir garantieren eine hohe Servicequalität.
Wir können Ihnen bei der Vermittlung von Unterkünften während der Besichtigungen helfen.
- Ich habe eine Immobilie aus dem Angebot ausgewählt
- Ich kontaktiere den Makler
- Ich unterschreibe einen Vertretungsvertrag - Details hier! (die Unterzeichnung des Vertrags ist gesetzlich vorgeschrieben)
- Ich richte eine OIB ein - Details hier (die Einrichtung ist gesetzlich vorgeschrieben)
- Besichtigungen vor Ort
- Unterzeichnung der Reservierung, des Kaufvertrags