ZAGREB, OBERSTADT - Einzigartiges Haus inmitten der Natur
| Registrationsnummer | DN-43239 |
| Art des Angebots | Verkauf |
| Kategorie | Häuser |
| Bezirk | Grad Zagreb |
| Gemeindeteil | Gornji Grad - Medveščak |
| Preis | 1 600 000 € |
| Gesamtfläche | 350 m² |
| Bebaute Fläche und Hof | 690 m² |
| Gesamt bebaut fläche | 690 m² |
| Strom | |
| Abfall |
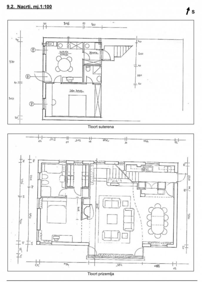
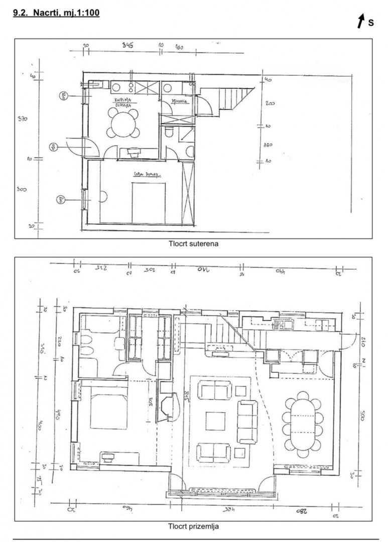
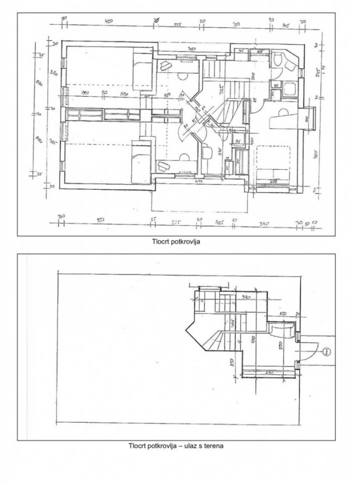
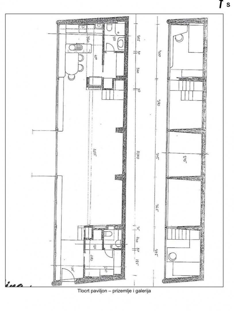
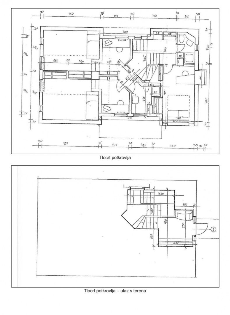
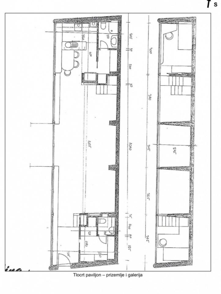
ZAGREB, OBERSTADT – Einzigartiges Haus inmitten der Natur Mitten im Grünen, nur 12 Gehminuten von Ilica und dem Zentrum Zagrebs entfernt, bietet dieses einzigartige Haus absolute Ruhe und Privatsphäre – ohne Nachbarn und mit Blick auf die Naturlandschaft von Dubravkin put und Tuškanac. Neben dem Haus befindet sich ein Gewerberaum. Das Wohngebäude erstreckt sich über drei Etagen und hat eine Gesamtfläche von 262 m². Im Erdgeschoss befinden sich zwei Schlafzimmer, ein Arbeitszimmer und zwei Badezimmer. Der Eingang zum ersten Obergeschoss führt zum Wohnzimmer. Das geräumige Wohnzimmer ist mit einer großen Terrasse verbunden, die sich harmonisch in die Natur einfügt und so eine perfekte Verbindung zwischen Innen und Außen schafft. Ergänzt wird der Grundriss des ersten Obergeschosses durch eine Küche, ein Esszimmer und das Hauptschlafzimmer mit eigenem Bad. Das zweite Obergeschoss ist als separate Zweizimmerwohnung gestaltet. Diese Wohnung ist über eine Innentreppe mit dem Rest des Hauses verbunden und verfügt zudem über einen separaten Eingang. Neben dem Wohnhaus befindet sich ein separates Gebäude mit 112 m² Geschäftsfläche, ideal für ein zehnköpfiges Team. Die Geschäftsräume gliedern sich in einen großen, offenen Eingangsbereich, zwei kleinere, separate Galerien sowie ein Badezimmer mit WC. Die Lage an der bekannten Promenade Dubravkin put bietet eine außergewöhnliche Kombination aus Privatsphäre und guter Erreichbarkeit. Alle Annehmlichkeiten der Stadt sind in unmittelbarer Nähe, und die Buslinie 105 sorgt für schnelle Verbindungen in den Rest der Stadt. Der Entwurf für Wohnhaus und Geschäftsgebäude stammt von einem renommierten Zagreber Architekten und Professor, der auch die gesamte Bauleitung innehatte. Das Gebäude wurde in Pfahlgründung mit Stahlbetonkonstruktionen errichtet. Die Zugangstreppen bestehen aus Stahl und Holz und sind ebenfalls auf Pfahlgründungen gelagert. Dank dieser Bauweise blieb das Gebäude bei den Erdbeben in Zagreb unbeschädigt – ein Beweis für die außergewöhnliche Qualität und Stabilität der Konstruktion. Dank seiner einzigartigen Lage inmitten der Natur und dennoch in unmittelbarer Nähe zum Zentrum ist dieses Anwesen die perfekte Wahl zum Wohnen, als Sommerresidenz oder als Kapitalanlage.
Bei allen unseren Angeboten sind die Preise identisch mit dem Direktkauf bei der Agentur/dem Entwickler in Kroatien, da wir der offizielle Vertreter dieser Agenturen auf dem tschechischen, slowakischen, deutschen und österreichischen Markt sind. Dies gilt ohne zusätzliche Zuschläge für deutschsprachige Dienstleistungen.
Sehr geehrte Kunden, die Besichtigung von Immobilien, die Mitteilung der Lage und andere detaillierte Informationen sind nur mit einem unterzeichneten Vermittlungsvertrag möglich, der die Grundlage für weitere Aktionen wie den Kauf einer Immobilie bildet. Alles steht im Einklang mit dem Gesetz über die Vermittlung beim Kauf von Immobilien. Der Käufer zahlt eine gesetzliche Vermittlungsprovision in Höhe von 3% (+ MwSt.) des vereinbarten Preises, und zwar nur im Falle des Kaufs der Immobilie. Sollte der Kauf nicht zustande kommen, ist der Vertrag für Sie nicht bindend und wird annulliert. Wenn Sie ernsthaft an der Immobilie interessiert sind, senden wir Ihnen den Vertrag auf Anfrage zu.
Wir werden Ihnen innerhalb von 24 Stunden antworten.
Wir bieten nur geprüfte Immobilien an.
Wir garantieren eine hohe Servicequalität.
Wir können Ihnen bei der Vermittlung von Unterkünften während der Besichtigungen helfen.
- Ich habe eine Immobilie aus dem Angebot ausgewählt
- Ich kontaktiere den Makler
- Ich unterschreibe einen Vertretungsvertrag - Details hier! (die Unterzeichnung des Vertrags ist gesetzlich vorgeschrieben)
- Ich richte eine OIB ein - Details hier (die Einrichtung ist gesetzlich vorgeschrieben)
- Besichtigungen vor Ort
- Unterzeichnung der Reservierung, des Kaufvertrags