ZAGREBAČKA, DONJI STUPNIK – Ausgezeichnete Investition – Bauland mit Projekt und Genehmigung!
| Registrationsnummer | DN-42714 |
| Art des Angebots | Verkauf |
| Kategorie | Bauland |
| Bezirk | Zagrebačka |
| Gemeindeteil | Stupnik |
| Preis | 220 000 € |
| Preis pro m2 | 273 €/m² |
| Gesamtfläche | 803 m² |
| Strom | |
| Abfall |
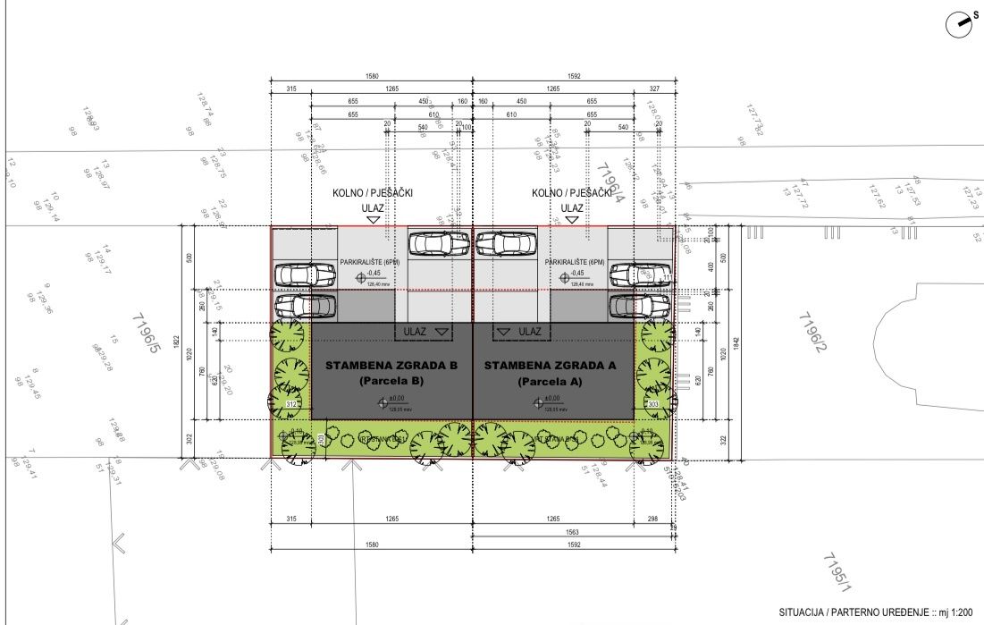
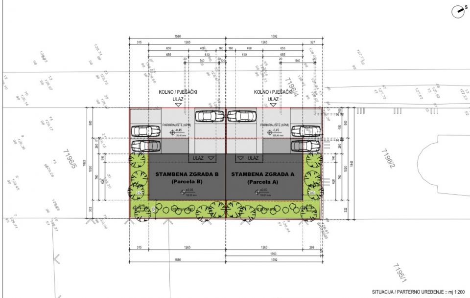
ZAGREBAČKA, DONJI STUPNIK – Hervorragende Investition – Bauland mit Projekt und Baugenehmigung! Zum Verkauf stehen zwei zusammenhängende Baugrundstücke mit einer Gesamtfläche von 579 m². Die Baugenehmigungen für den Bau von zwei Doppelhaushälften liegen vor. Das Projekt sieht insgesamt sechs komfortable Wohnungen mit jeweils ca. 70 m² Wohnfläche bzw. insgesamt 420 m² Nettowohnfläche vor. Das Projekt ist sofort umsetzbar und somit ideal für Investoren und alle, die sich den langwierigen Genehmigungsprozess und den Papierkram ersparen möchten. Zusätzlich zu den Baugrundstücken sind im Preis zusätzliche 224 m² anteiliges Miteigentum an der Zufahrtsstraße enthalten, sodass sich die Gesamtfläche auf 803 m² beläuft. Die Zufahrtsstraße ist bereits angelegt und funktionsfähig; Wasseranschlüsse, Regenwasserabflussrohre und Vorbereitungen für Telefonanlagen sind vorhanden. Die Straße ist mit Schotterasphalt versehen und mit Strommasten inklusive Solarbeleuchtung ausgestattet. Die Grundstücke liegen an einem leichten Hang oberhalb der Zufahrtsstraße und bieten einen freien Blick auf Sljeme und Žumberačka gora. Die Lage ist äußerst praktisch für den Alltag, da sich in unmittelbarer Nähe ein Busbahnhof, eine Schule, ein Kindergarten, ein Gesundheitszentrum und ein Einkaufszentrum befinden. Im Preis inbegriffen sind zwei geplante Baugrundstücke, ein Miteigentumsanteil an der Zufahrtsstraße, die Projektdokumentation, rechtskräftige Baugenehmigungen und die vollständige Vorbereitung der Infrastruktur der Zufahrtsstraße, einschließlich Wasserversorgung, Regenwasserkanalisation und Telefonie, sowie eine angelegte Straße mit installierten Strommasten. Nicht im Angebot enthalten sind die Kosten für den Anschluss an Versorgungssysteme wie Wasser, Strom und Abwasser sowie die Zahlung von Nebenkosten- und Wassergebühren. Dieses Grundstück bietet eine hervorragende Gelegenheit, ohne zusätzliche Wartezeiten zu bauen – das Projekt ist fertig, die Dokumentation ist in Ordnung, und es fehlt nur noch der Baubeginn.
Bei allen unseren Angeboten sind die Preise identisch mit dem Direktkauf bei der Agentur/dem Entwickler in Kroatien, da wir der offizielle Vertreter dieser Agenturen auf dem tschechischen, slowakischen, deutschen und österreichischen Markt sind. Dies gilt ohne zusätzliche Zuschläge für deutschsprachige Dienstleistungen.
Sehr geehrte Kunden, die Besichtigung von Immobilien, die Mitteilung der Lage und andere detaillierte Informationen sind nur mit einem unterzeichneten Vermittlungsvertrag möglich, der die Grundlage für weitere Aktionen wie den Kauf einer Immobilie bildet. Alles steht im Einklang mit dem Gesetz über die Vermittlung beim Kauf von Immobilien. Der Käufer zahlt eine gesetzliche Vermittlungsprovision in Höhe von 3% (+ MwSt.) des vereinbarten Preises, und zwar nur im Falle des Kaufs der Immobilie. Sollte der Kauf nicht zustande kommen, ist der Vertrag für Sie nicht bindend und wird annulliert. Wenn Sie ernsthaft an der Immobilie interessiert sind, senden wir Ihnen den Vertrag auf Anfrage zu.
Wir werden Ihnen innerhalb von 24 Stunden antworten.
Wir bieten nur geprüfte Immobilien an.
Wir garantieren eine hohe Servicequalität.
Wir können Ihnen bei der Vermittlung von Unterkünften während der Besichtigungen helfen.
- Ich habe eine Immobilie aus dem Angebot ausgewählt
- Ich kontaktiere den Makler
- Ich unterschreibe einen Vertretungsvertrag - Details hier! (die Unterzeichnung des Vertrags ist gesetzlich vorgeschrieben)
- Ich richte eine OIB ein - Details hier (die Einrichtung ist gesetzlich vorgeschrieben)
- Besichtigungen vor Ort
- Unterzeichnung der Reservierung, des Kaufvertrags