ISTRIA, UMAG - NEU - Grundstück mit Baugenehmigung für ein Gebäude
| Registrationsnummer | DN-45324 |
| Art des Angebots | Verkauf |
| Kategorie | Bauland |
| Bezirk | Istarska |
| Gemeindeteil | Umag |
| Preis | 300 000 € |
| Preis pro m2 | 333 €/m² |
| Gesamtfläche | 900 m² |
| Entfernung vom meer | 2 000 m |
| Strom | |
| Wasser | |
| Abfall |
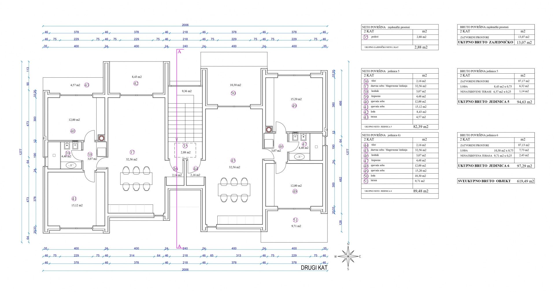
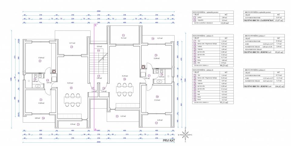
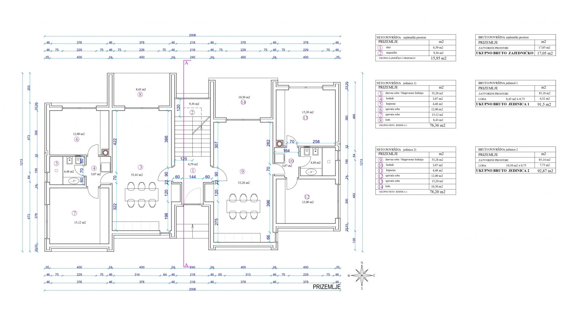
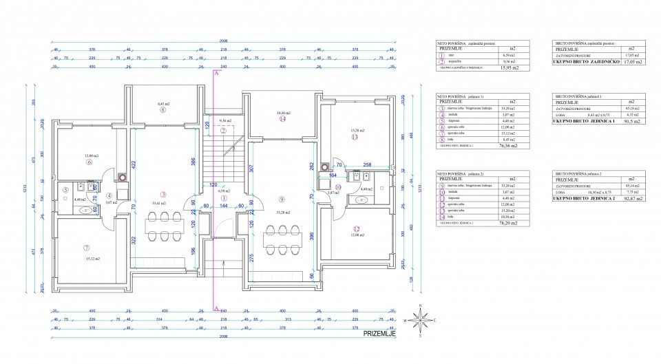
ISTRIEN, UMAG – Baugrundstück mit gültiger Baugenehmigung für ein Wohngebäude (6 Wohnungen) In der Nähe von Umag, nur 2 km vom Stadtzentrum und dem Meer entfernt, steht ein attraktives, 800 m² großes Baugrundstück mit gültiger Baugenehmigung für den Bau eines Wohngebäudes mit 6 Zweizimmerwohnungen zum Verkauf. Laut aktuellem Projekt ist der Bau eines Gebäudes mit einer Bruttogeschossfläche von 600 m² geplant, bestehend aus sechs zweigeschossigen Wohnungen mit einer Größe von 76 bis 95 m². Jede Wohnung verfügt über zwei Schlafzimmer und ein Wohnzimmer mit Küche und Essbereich. Größere Wohnungen bieten zudem mehrere Terrassen und Loggien. Insgesamt sind 9 Parkplätze vorgesehen. Das umliegende Gelände ist abfallend und optimal ausgerichtet, sodass alle Wohnungen im ersten und zweiten Obergeschoss einen freien Meerblick bieten. Alle Wohnungen genießen absolute Privatsphäre und einen unverbaubaren Ausblick. Die gesamte notwendige Infrastruktur (Strom, Wasser, Abwasser) ist auf dem Grundstück vorhanden. Das Grundstück liegt an einer asphaltierten Straße, die Anschlüsse für Strom, Wasser und Gas sind bezahlt, und die Baugenehmigung ist noch 3 Jahre gültig mit der Möglichkeit einer Verlängerung um weitere 3 Jahre. Der Baubeginn ist sofort möglich. Das bestehende Projekt kann an die Wünsche des zukünftigen Investors angepasst werden. Eine ideale Gelegenheit für Investoren, die das Potenzial der Tourismusregion Umag mit minimalem Verwaltungsaufwand und einem möglichst schnellen Baubeginn nutzen möchten. Für weitere Informationen, eine Besichtigung des Grundstücks und Einblick in die vollständigen Unterlagen kontaktieren Sie uns bitte.
Bei allen unseren Angeboten sind die Preise identisch mit dem Direktkauf bei der Agentur/dem Entwickler in Kroatien, da wir der offizielle Vertreter dieser Agenturen auf dem tschechischen, slowakischen, deutschen und österreichischen Markt sind. Dies gilt ohne zusätzliche Zuschläge für deutschsprachige Dienstleistungen.
Sehr geehrte Kunden, die Besichtigung von Immobilien, die Mitteilung der Lage und andere detaillierte Informationen sind nur mit einem unterzeichneten Vermittlungsvertrag möglich, der die Grundlage für weitere Aktionen wie den Kauf einer Immobilie bildet. Alles steht im Einklang mit dem Gesetz über die Vermittlung beim Kauf von Immobilien. Der Käufer zahlt eine gesetzliche Vermittlungsprovision in Höhe von 3% (+ MwSt.) des vereinbarten Preises, und zwar nur im Falle des Kaufs der Immobilie. Sollte der Kauf nicht zustande kommen, ist der Vertrag für Sie nicht bindend und wird annulliert. Wenn Sie ernsthaft an der Immobilie interessiert sind, senden wir Ihnen den Vertrag auf Anfrage zu.
Wir werden Ihnen innerhalb von 24 Stunden antworten.
Wir bieten nur geprüfte Immobilien an.
Wir garantieren eine hohe Servicequalität.
Wir können Ihnen bei der Vermittlung von Unterkünften während der Besichtigungen helfen.
- Ich habe eine Immobilie aus dem Angebot ausgewählt
- Ich kontaktiere den Makler
- Ich unterschreibe einen Vertretungsvertrag - Details hier! (die Unterzeichnung des Vertrags ist gesetzlich vorgeschrieben)
- Ich richte eine OIB ein - Details hier (die Einrichtung ist gesetzlich vorgeschrieben)
- Besichtigungen vor Ort
- Unterzeichnung der Reservierung, des Kaufvertrags