ISTRIEN, LABIN – Moderne Villa inmitten der Natur
| Registrationsnummer | DN-41774 | 
| Art des Angebots | Verkauf | 
| Kategorie | Häuser | 
| Bezirk | Istarska | 
| Gemeindeteil | Labin | 
| Preis | 1 765 000 € | 
| Gesamtfläche | 500 m² | 
| Bebaute Fläche und Hof | 7 500 m² | 
| Gesamt bebaut fläche | 7 500 m² | 
| Entfernung vom meer | 5 000 m | 
| Strom | |
| Klimaanlage | |
| Heizung | ano | 
| Energieintensität | A - extrem wirtschaftlich | 
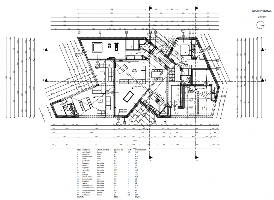
ISTRIEN, LABIN – Eine moderne Villa inmitten der Natur An der Südostküste Istriens, wo grüne Hügel auf das Meer treffen, wo Natur und Kulturerbe sich vereinen, liegen zwei Städte ähnlicher Größe mit unterschiedlichem, aber sich gegenseitig ergänzendem Charakter – Labin und Rabac. Das malerische Städtchen Labin erhebt sich auf einem 320 m hohen Hügel, nur vier Kilometer von den weißen Kieselstränden von Rabac entfernt. Verwoben mit einer reichen Geschichte und dem Bergbau, der diese Gegend prägte, ist Labin, das kurzzeitig zur unabhängigen Republik erklärt wurde, heute eine faszinierende Stadt der Widersprüche: Alt und Neu, Geschichte und Gegenwart, Tourismus und Kunst. Unweit der Stadt Labin steht eine moderne Villa inmitten der Natur zum Verkauf. Die Immobilie verkörpert eine Harmonie aus Raum, Bedürfnissen, Funktionen, Bauweise und Schönheit. Die Mikrolage bietet das authentische Erlebnis einer istrischen Kleinstadt, Intimität und Erholung von Hektik und Lärm bei gleichzeitiger Nähe zum Meer und den städtischen Annehmlichkeiten von Labin. Neben der Lage, die absoluten Komfort und Privatsphäre bietet, zeichnet sich das Anwesen auch durch die Bauqualität aus, die langfristige Zufriedenheit und Lebensqualität garantiert. Die Villa fügt sich mit ihrer Architektur in Form und Farbe in die Siedlung und Landschaft ein und schafft eine Synergie aus natürlicher Umgebung und modernem Design. Sie ist als eine Wohneinheit definiert, deren Fläche sich auf zwei geschmackvoll eingerichtete und gut ausgestattete Etagen mit funktionalem Grundriss verteilt. Das Erdgeschoss besteht aus einem geräumigen, offenen Konzept, das Küche, Esszimmer und Wohnzimmer mit Zugang zu einer geräumigen überdachten Terrasse mit Sommerküche, Außentoilette und Abstellraum vereint. Der Grundriss des Erdgeschosses wird ergänzt durch einen Fitnessraum mit Fitnessgeräten, ein Schlafzimmer mit eigenem Bad, eine Gästetoilette, eine Waschküche und einen Technikraum mit Abstellraum. Der erste Stock besteht aus einem Flur auf der Galerie und drei Schlafzimmern mit eigenen Bädern und privaten Terrassen. Der Hof ist stimmungsvoll und gärtnerisch gestaltet und ein Swimmingpool mit Liegewiese sorgt für vollkommene Harmonie. Die hervorragende Lage und die räumliche Aufteilung des Innen- und Außenbereichs dieser Immobilie bieten die Möglichkeit für ein komfortables Familienleben oder eine Investition in ein touristisches Vermietungsgeschäft.
Bei allen unseren Angeboten sind die Preise identisch mit dem Direktkauf bei der Agentur/dem Entwickler in Kroatien, da wir der offizielle Vertreter dieser Agenturen auf dem tschechischen, slowakischen, deutschen und österreichischen Markt sind. Dies gilt ohne zusätzliche Zuschläge für deutschsprachige Dienstleistungen.
Sehr geehrte Kunden, die Besichtigung von Immobilien, die Mitteilung der Lage und andere detaillierte Informationen sind nur mit einem unterzeichneten Vermittlungsvertrag möglich, der die Grundlage für weitere Aktionen wie den Kauf einer Immobilie bildet. Alles steht im Einklang mit dem Gesetz über die Vermittlung beim Kauf von Immobilien. Der Käufer zahlt eine gesetzliche Vermittlungsprovision in Höhe von 3% (+ MwSt.) des vereinbarten Preises, und zwar nur im Falle des Kaufs der Immobilie. Sollte der Kauf nicht zustande kommen, ist der Vertrag für Sie nicht bindend und wird annulliert. Wenn Sie ernsthaft an der Immobilie interessiert sind, senden wir Ihnen den Vertrag auf Anfrage zu.
 
Wir werden Ihnen innerhalb von 24 Stunden antworten.
Wir bieten nur geprüfte Immobilien an.
Wir garantieren eine hohe Servicequalität.
Wir können Ihnen bei der Vermittlung von Unterkünften während der Besichtigungen helfen.
 
- Ich habe eine Immobilie aus dem Angebot ausgewählt
- Ich kontaktiere den Makler
- Ich unterschreibe einen Vertretungsvertrag - Details hier! (die Unterzeichnung des Vertrags ist gesetzlich vorgeschrieben)
- Ich richte eine OIB ein - Details hier (die Einrichtung ist gesetzlich vorgeschrieben)
- Besichtigungen vor Ort
- Unterzeichnung der Reservierung, des Kaufvertrags
 
 
 
 
 
 
 
 
 
 
 
 
 
 
 
 
 
 
 
 
 
 
 
 
 
 
 
 
 
 
 
 
 
 
 
 
 
 
 
 
 
 
 
 
 
 
 
 
 
 
 
 
 
 
 
 
 
 
 
 
 
 
 
 
 
 
 
 
 
 
