ISTRIEN, MEDULIN - Freistehendes Haus in Strandnähe
| Registrationsnummer | DN-43897 |
| Art des Angebots | Verkauf |
| Kategorie | Häuser |
| Bezirk | Istarska |
| Gemeindeteil | Medulin |
| Preis | 497 800 € |
| Gesamtfläche | 144 m² |
| Bebaute Fläche und Hof | 212 m² |
| Gesamt bebaut fläche | 212 m² |
| Entfernung vom meer | 200 m |
| Strom | |
| Abfall | |
| Klimaanlage | |
| Energieintensität | X - Nicht ausgestellt |
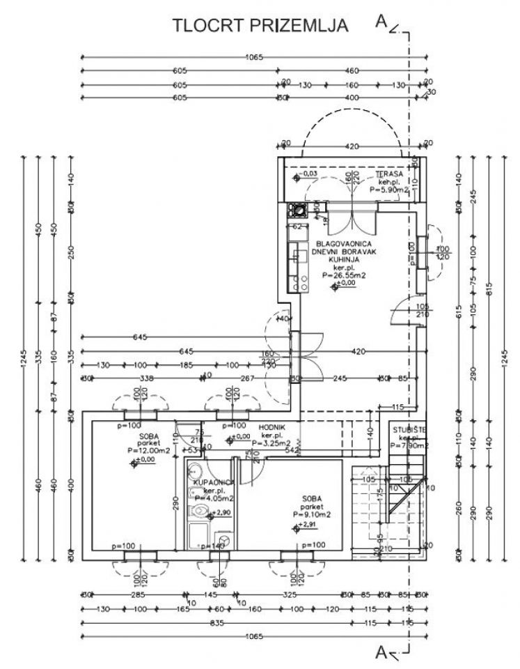
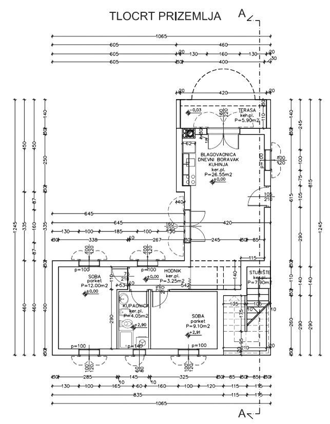
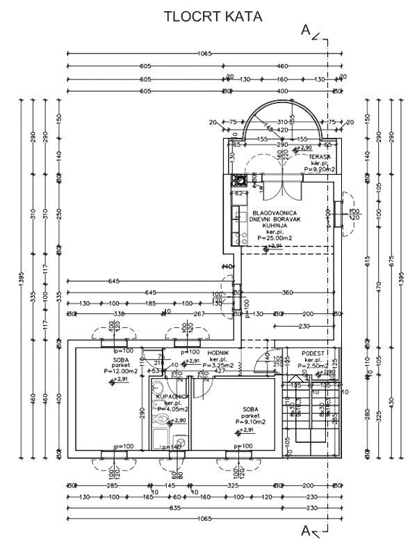
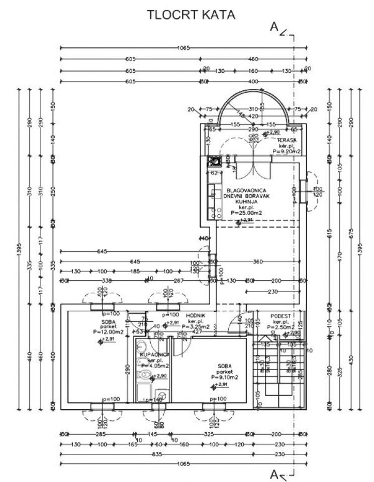
ISTRIEN, MEDULIN – Freistehendes Haus in Strandnähe Die Spitze Istriens, wie sie im Volksmund genannt wird, gehört zu den Touristenorten der Halbinsel und ist eines der zwanzig bekanntesten Reiseziele an der Adria – Medulin. Das einst kleine Fischerdorf Medulin profitiert von seiner günstigen geografischen Lage, einem gut geschützten Hafen und einem fruchtbaren Hinterland, was zu seiner wirtschaftlichen Entwicklung beigetragen hat. Zur Gemeinde Medulin gehören auch die kleineren Orte Banjole, Pješčana uvala (bekannt für seine Sandstrände), Pomer, Premantura, Vinkuran und Vintijan. Die kleine Halbinsel Vižula, eine archäologische Stätte und seit 1974 unter Denkmalschutz, gehört ebenfalls zu Medulin. Unweit des Zentrums von Medulin steht ein freistehendes Haus in Strandnähe zum Verkauf. Das als zweigeschossiges Gebäude konzipierte Haus erstreckt sich über Erdgeschoss und Obergeschoss und besteht aus zwei Wohneinheiten. Im Erdgeschoss befindet sich eine Wohneinheit mit zwei Schlafzimmern, einem Badezimmer, einem Wohnbereich mit Wohnzimmer, Esszimmer und Küche sowie einer Loggia. Im Obergeschoss befindet sich eine weitere Wohneinheit mit zwei Schlafzimmern, einem Badezimmer, einem Wohnbereich mit Wohnzimmer, Esszimmer und Küche, einem Balkon und einer Loggia. Der Garten ist gärtnerisch gestaltet und bietet zwei Parkplätze. Das Objekt ist komplett ausgestattet und möbliert und wird im aktuellen Zustand verkauft. Die außergewöhnliche Lage und die Raumaufteilung dieser Immobilie bieten die Möglichkeit für ein komfortables Familienleben oder als Investition in ein bereits etabliertes Ferienvermietungsgeschäft. Verkäufer der Immobilie ist eine juristische Person.
Bei allen unseren Angeboten sind die Preise identisch mit dem Direktkauf bei der Agentur/dem Entwickler in Kroatien, da wir der offizielle Vertreter dieser Agenturen auf dem tschechischen, slowakischen, deutschen und österreichischen Markt sind. Dies gilt ohne zusätzliche Zuschläge für deutschsprachige Dienstleistungen.
Sehr geehrte Kunden, die Besichtigung von Immobilien, die Mitteilung der Lage und andere detaillierte Informationen sind nur mit einem unterzeichneten Vermittlungsvertrag möglich, der die Grundlage für weitere Aktionen wie den Kauf einer Immobilie bildet. Alles steht im Einklang mit dem Gesetz über die Vermittlung beim Kauf von Immobilien. Der Käufer zahlt eine gesetzliche Vermittlungsprovision in Höhe von 3% (+ MwSt.) des vereinbarten Preises, und zwar nur im Falle des Kaufs der Immobilie. Sollte der Kauf nicht zustande kommen, ist der Vertrag für Sie nicht bindend und wird annulliert. Wenn Sie ernsthaft an der Immobilie interessiert sind, senden wir Ihnen den Vertrag auf Anfrage zu.
Wir werden Ihnen innerhalb von 24 Stunden antworten.
Wir bieten nur geprüfte Immobilien an.
Wir garantieren eine hohe Servicequalität.
Wir können Ihnen bei der Vermittlung von Unterkünften während der Besichtigungen helfen.
- Ich habe eine Immobilie aus dem Angebot ausgewählt
- Ich kontaktiere den Makler
- Ich unterschreibe einen Vertretungsvertrag - Details hier! (die Unterzeichnung des Vertrags ist gesetzlich vorgeschrieben)
- Ich richte eine OIB ein - Details hier (die Einrichtung ist gesetzlich vorgeschrieben)
- Besichtigungen vor Ort
- Unterzeichnung der Reservierung, des Kaufvertrags