ISTRIEN, VIŠNJAN - Einzigartiges Steinhaus mit Swimmingpool
| Registrationsnummer | DN-43595 |
| Art des Angebots | Verkauf |
| Kategorie | Häuser |
| Bezirk | Istarska |
| Gemeindeteil | Višnjan |
| Preis | 1 470 000 € |
| Gesamtfläche | 309 m² |
| Bebaute Fläche und Hof | 1 226 m² |
| Gesamt bebaut fläche | 1 226 m² |
| Entfernung vom meer | 14 000 m |
| Strom | |
| Klimaanlage | |
| Energieintensität | X - Nicht ausgestellt |
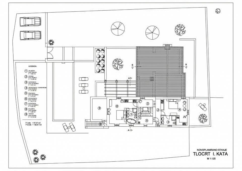
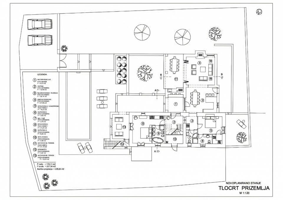
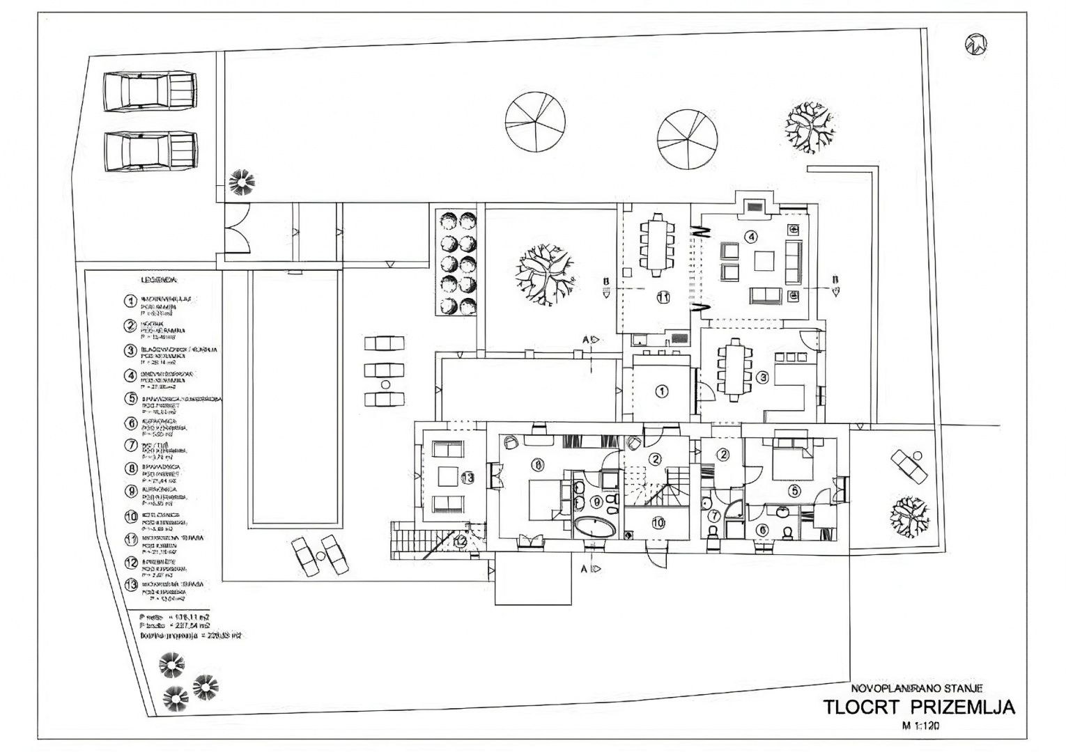
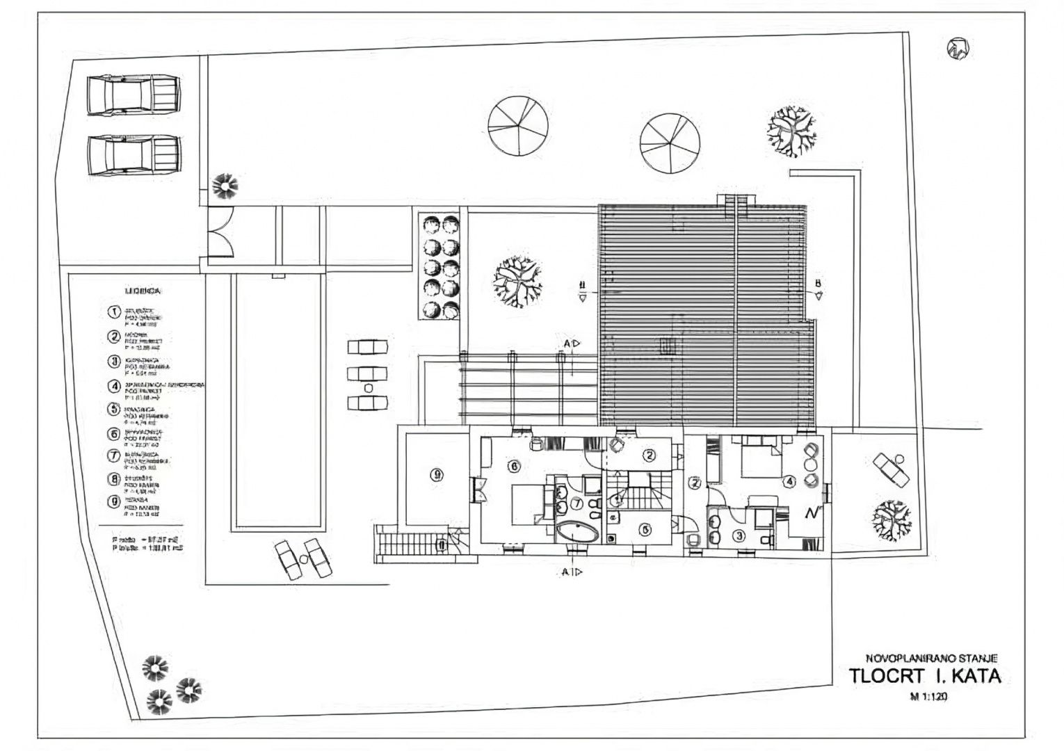
ISTRIEN, VIŠNJAN – Einzigartiges Steinhaus mit Swimmingpool Višnjan ist eine malerische und lebendige Stadt und Gemeinde im Westen Istriens. Die Gemeinde Višnjan umfasst 56 Ortschaften und liegt zwischen dem Fluss Mirna im Norden und dem Lim-Kanal im Süden. Das romantische Višnjan schmiegt sich an einen sanften Hügel, 244 Meter über dem Meeresspiegel, umgeben von Wiesen, Ackerland und Wäldern aus Steineichen und Weißbuchen. Heute ist Višnjan vor allem für seine einzigartige Sternwarte bekannt, die gemessen an der Anzahl der entdeckten Asteroiden zu den zwölf produktivsten Sternwarten der Welt zählt. In der idyllischen Landschaft um Višnjan steht ein einzigartiges Steinhaus mit Swimmingpool zum Verkauf. Die Lage bietet ein authentisches Erlebnis einer kleinen istrischen Stadt, Ruhe und Erholung vom Alltagstrubel, und gleichzeitig die Nähe zum Meer und den dynamischen Städten Istriens mit ihren vielfältigen Annehmlichkeiten. Neben der günstigen Lage am Ortsrand zeichnet sich das Anwesen durch die hochwertige Sanierung und den Neubau aus, die langfristige Zufriedenheit und hohe Wohnqualität garantieren. Die Schönheit des alten Steins erstrahlt in neuem Glanz und seine architektonische Vergangenheit ist nun zeitlos, indem Tradition und Moderne harmonisch miteinander verbunden werden. Bei Bau und Sanierung wurden ausschließlich natürliche Materialien verwendet, die ein Gefühl von Wärme, Behaglichkeit und Luxus vermitteln. Die originalen Steinplatten wurden erhalten, speziell bearbeitet und für den Innenausbau angepasst. Die Böden in den Räumen sind mit bis zu 4 Meter langen Dielen aus slawonischer Eiche belegt. Das Haus ist mit hochwertigen Möbeln und Geräten, einer Daikin Altherma Wärmepumpe, Gebläsekonvektoren, einer Fußbodenheizung für alle Steinböden und Heizkörpern in Räumen mit Holzböden, einer Alarmanlage und Videoüberwachung ausgestattet. Das Erdgeschoss des Hauses besteht aus einer Küche mit Essbereich und einem Wohnzimmer mit Zugang zum Weinkeller und einer überdachten Terrasse mit Sommerküche, zwei Schlafzimmern mit jeweils eigenem Bad, einem Gäste-WC und Technikräumen. Im ersten Stock befinden sich zwei weitere Schlafzimmer mit jeweils eigenem Bad, eine Waschküche und eine Terrasse. Der beeindruckende Garten ist vollständig von einer Steinmauer umgeben und mit mediterranen Pflanzen geschmückt. Sechs etwa 250 Jahre alte Olivenbäume bereichern das Bild. Ein 55 m² großer Swimmingpool mit einer mit istrischem Stein gepflasterten Liegewiese rundet das harmonische Gesamtbild ab. Dieses außergewöhnliche Anwesen ist ein wahres Juwel, das den Geist vergangener Zeiten, die ländliche Idylle und die Ruhe Istriens mit modernem Luxus verbindet. Es bietet eine hervorragende Investitionsmöglichkeit sowie die Chance auf ein idyllisches Familienleben.
Bei allen unseren Angeboten sind die Preise identisch mit dem Direktkauf bei der Agentur/dem Entwickler in Kroatien, da wir der offizielle Vertreter dieser Agenturen auf dem tschechischen, slowakischen, deutschen und österreichischen Markt sind. Dies gilt ohne zusätzliche Zuschläge für deutschsprachige Dienstleistungen.
Sehr geehrte Kunden, die Besichtigung von Immobilien, die Mitteilung der Lage und andere detaillierte Informationen sind nur mit einem unterzeichneten Vermittlungsvertrag möglich, der die Grundlage für weitere Aktionen wie den Kauf einer Immobilie bildet. Alles steht im Einklang mit dem Gesetz über die Vermittlung beim Kauf von Immobilien. Der Käufer zahlt eine gesetzliche Vermittlungsprovision in Höhe von 3% (+ MwSt.) des vereinbarten Preises, und zwar nur im Falle des Kaufs der Immobilie. Sollte der Kauf nicht zustande kommen, ist der Vertrag für Sie nicht bindend und wird annulliert. Wenn Sie ernsthaft an der Immobilie interessiert sind, senden wir Ihnen den Vertrag auf Anfrage zu.
Wir werden Ihnen innerhalb von 24 Stunden antworten.
Wir bieten nur geprüfte Immobilien an.
Wir garantieren eine hohe Servicequalität.
Wir können Ihnen bei der Vermittlung von Unterkünften während der Besichtigungen helfen.
- Ich habe eine Immobilie aus dem Angebot ausgewählt
- Ich kontaktiere den Makler
- Ich unterschreibe einen Vertretungsvertrag - Details hier! (die Unterzeichnung des Vertrags ist gesetzlich vorgeschrieben)
- Ich richte eine OIB ein - Details hier (die Einrichtung ist gesetzlich vorgeschrieben)
- Besichtigungen vor Ort
- Unterzeichnung der Reservierung, des Kaufvertrags