KLENOVICA - Doppelhaus/Villa 320m2 mit Meerblick + Umgebung 400m2
| Registrationsnummer | DN-31938 |
| Art des Angebots | Verkauf |
| Kategorie | Häuser |
| Bezirk | Primorsko-goranska |
| Gemeindeteil | Novi Vinodolski |
| Preis | 570 000 € |
| Gesamtfläche | 320 m² |
| Bebaute Fläche und Hof | 400 m² |
| Gesamt bebaut fläche | 400 m² |
| Strom | |
| Wasser | |
| Klimaanlage |
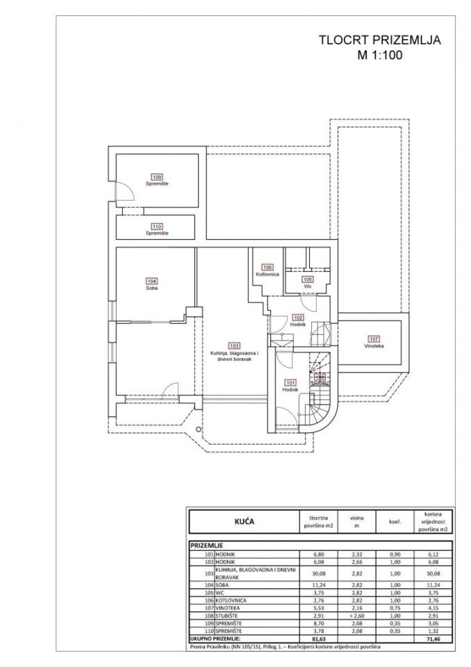
KLENOVICA – Doppelhaus/Villa 320m2 mit Blick auf das Meer + Umgebung 400m2 Das Haus/Villa wurde vor etwa 10 Jahren gebaut, es wurde mit viel Liebe zum Detail und der Liebe des Eigentümers eingerichtet und die gesamte Inneneinrichtung strahlt Luxus aus. Das Haus besteht aus ERDGESCHOSS + 1. STOCK + 2. STOCK, die durch eine Innentreppe verbunden sind. - ERDGESCHOSS - Gesamtfläche 71,46 m². FLUR 1. FLUR 2. KÜCHE, ESSZIMMER UND WOHNZIMMER. ZIMMER, WC, KESSELRAUM, WEINKELLER, TREPPE, LAGERUNG 1, LAGERUNG 2 - 1. STOCK, Gesamtfläche 133,57 m2. FLUR, 1 KÜCHE, ESSZIMMER UND WOHNZIMMER. UNÜBERDACHTE TERRASSE. WOHNZIMMER 1 WOHNZIMMER ZIMMER 2 ZIMMER 1 FLUR 2 ZIMMER 2 BADEZIMMER UND TOILETTE WC-FLUR 3 ZIMMER 3 BADEZIMMER UND TOILETTE KÜCHE UND ESSZIMMER ÜBERDACHTER BALKON TREPPE - 2. STOCK Gesamtfläche 116,98 m2 FLUR 1 KÜCHE UND ESSZIMMER GALERIE BADEZIMMER UND TOILETTE ZIMMER 1 UNTERKUNFT NICHT ÜBERDACHT. TERRASSE KÜCHE BADEZIMMER UND TOILETTENRAUM 2 UNÜBERDACHTER BALKON 1 ZIMMER 3 FLUR 2 ZIMMER 4 UNÜBERDACHTER BALKON 2 BADEZIMMER UND TOILETTE KÜCHE UND ESSZIMMER UNÜBERDACHTER BALKON GARTEN: Der Hof wurde viele Jahre lang angelegt und gepflegt. Es enthält einen Kamin und eine unterirdische Zisterne, die sogenannte Dachrinnen zum Sammeln von Regenwasser. Im Garten ist auch Platz für ein Schwimmbad. Sicherlich eine schöne Immobilie für das Familienleben, aber auch als Investition in Form von Tourismus geeignet. Dieses Anwesen liegt 340 m Luftlinie vom Meer entfernt, bzw. 400 m mit dem Auto (ca. 2 Minuten).
Bei allen unseren Angeboten sind die Preise identisch mit dem Direktkauf bei der Agentur/dem Entwickler in Kroatien, da wir der offizielle Vertreter dieser Agenturen auf dem tschechischen, slowakischen, deutschen und österreichischen Markt sind. Dies gilt ohne zusätzliche Zuschläge für deutschsprachige Dienstleistungen.
Sehr geehrte Kunden, die Besichtigung von Immobilien, die Mitteilung der Lage und andere detaillierte Informationen sind nur mit einem unterzeichneten Vermittlungsvertrag möglich, der die Grundlage für weitere Aktionen wie den Kauf einer Immobilie bildet. Alles steht im Einklang mit dem Gesetz über die Vermittlung beim Kauf von Immobilien. Der Käufer zahlt eine gesetzliche Vermittlungsprovision in Höhe von 3% (+ MwSt.) des vereinbarten Preises, und zwar nur im Falle des Kaufs der Immobilie. Sollte der Kauf nicht zustande kommen, ist der Vertrag für Sie nicht bindend und wird annulliert. Wenn Sie ernsthaft an der Immobilie interessiert sind, senden wir Ihnen den Vertrag auf Anfrage zu.
Wir werden Ihnen innerhalb von 24 Stunden antworten.
Wir bieten nur geprüfte Immobilien an.
Wir garantieren eine hohe Servicequalität.
Wir können Ihnen bei der Vermittlung von Unterkünften während der Besichtigungen helfen.
- Ich habe eine Immobilie aus dem Angebot ausgewählt
- Ich kontaktiere den Makler
- Ich unterschreibe einen Vertretungsvertrag - Details hier! (die Unterzeichnung des Vertrags ist gesetzlich vorgeschrieben)
- Ich richte eine OIB ein - Details hier (die Einrichtung ist gesetzlich vorgeschrieben)
- Besichtigungen vor Ort
- Unterzeichnung der Reservierung, des Kaufvertrags