OPATIJA, LOVRAN, IKA - Villa 230 m2 mit Panoramablick auf das Meer und Swimmingpool + angelegter Garten 930 m2!!! GELEGENHEIT!!!
| Registrationsnummer | DN-31682 |
| Art des Angebots | Verkauf |
| Kategorie | Häuser |
| Bezirk | Primorsko-goranska |
| Gemeindeteil | Lovran |
| Preis | 1 475 000 € |
| Gesamtfläche | 230 m² |
| Bebaute Fläche und Hof | 930 m² |
| Gesamt bebaut fläche | 930 m² |
| Strom | |
| Wasser | |
| Abfall | |
| Klimaanlage | |
| Preis (original) | 1 575 000 € |
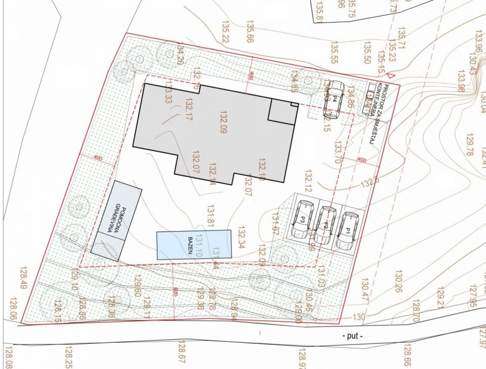
OPATIJA, LOVRAN, IKA - Villa 230 m2 mit Panoramablick auf das Meer und Swimmingpool + angelegter Garten 930 m2!!! GELEGENHEIT!!! BESCHREIBUNG: Wohnfläche: ca. 230 Quadratmeter (2.475 Quadratmeter) Grundstücksgröße: 933 m² / 10.040 m² 3 Schlafzimmer, 3,5 Badezimmer Offene Küche/Esszimmer Wohnzimmer mit Kamin und Panoramafenstern Familienzimmer mit großem Balkon Grill mit überdachtem Essbereich Beheizter Pool Carport für 3 Autos Bereit Einzug: Sommer 2024. Der Zugang zur Villa erfolgt über eine private Auffahrt. Unterhalb der am Hang gelegenen Villa befindet sich ein Wald, der viel Ruhe und Privatsphäre bietet. Der großzügige Garten und die flexible Raumaufteilung bieten ausreichend Platz für die ganze Familie, Homeoffice, Gäste und Hobbys. Die Villa eignet sich auch als Anlageobjekt zur Ferienvermietung. Das Wohnzimmer im Erdgeschoss bietet Blick auf den Pool und das Meer. Zwischen dem Wohnzimmer und der großzügigen offenen Küche mit Essbereich befindet sich ein beidseitig einsehbarer offener Kamin. Ebenfalls im Erdgeschoss gibt es ein Gästebad, das als Waschküche dient, sowie einen Raum, der als Sauna oder Weinkeller eingerichtet werden kann (keine Fenster). Sowohl vom Schlafzimmer als auch vom Badezimmer im Erdgeschoss haben Sie einen wunderschönen Blick auf das Meer. Im ersten Stock gibt es eine Garage mit Lastenaufzug zur Küche und den Haupteingang, der in ein großes Familienzimmer mit Panoramablick und Satteldach führt. Es ist als multifunktionaler Familienraum konzipiert und kann als Heimbüro, Fitnessstudio, Spielzimmer usw. genutzt werden. Oder einfach, um die herrliche Aussicht aus der Vogelperspektive zu genießen. Wer noch höher hinaus will, erreicht die Dachterrasse über die Außentreppe neben der Garage. Von hier aus können Sie spektakuläre Sonnenaufgänge bewundern oder Sternschnuppen zählen. Aber lasst uns zurück nach Hause gehen. Im Obergeschoss befinden sich zwei weitere Schlafzimmer mit jeweils einem Badezimmer. Eines davon bietet uneingeschränkten Meerblick und einen Balkon. Das zweite Zimmer verfügt über einen separaten Eingang und eine Terrasse mit Blick auf den Garten. Die Küchenzeile kann sowohl von dieser Wohnung als auch vom Familienzimmer aus genutzt werden. Vor dem Haus gibt es einen beheizten Swimmingpool, eine großzügige Terrasse, einen großen Garten, sowie einen Grillplatz mit überdachter Sitzecke. Die Villa wird voraussichtlich im Frühjahr 2024 bezugsfertig sein. Es besteht weiterhin die Möglichkeit, Bodenbeläge und Wandfarben auszuwählen. Die Villa liegt an der Riviera von Opatija zwischen den malerischen Fischerstädten Ika und Lovran. Die Villa liegt 800 Meter vom Meer entfernt. Ika und Lovran sind vom Gartentor aus etwa 1,6 km mit dem Auto oder 1,1 km über einen Fußweg entfernt. Die Entfernung von der ACI Marina Ičići beträgt 3,2 km (2 Meilen). LOVRAN: Lovran ist eine Stadt mit einer langen und reichen Vergangenheit und einer hundertjährigen Tradition im Tourismus. Es wurde nach dem Lorbeer (Laurus nobilis) benannt, der in den immergrünen Hainen der Stadt und ihrer Umgebung reichlich wächst. Lovran liegt an der Ostküste Istriens in der Kvarner-Bucht. Es liegt am Fuße des grünsten und am stärksten bewachsenen Berges an der Adria – Učka. Es ist 19 km von unserem größten Hafen Rijeka, 14 km vom Bahnhof in Matulji und 80 km vom Flughafen in Pula entfernt. Im Norden und Westen ist es von hohen Bergen (Učka 1396 m, Snježnik 1605 m, Risnjak 1528 m) und auf der Meeresseite von Inseln (Krk, Cres) umgeben und seine Lage ist außergewöhnlich windgeschützt. In den Wintermonaten ist der häufigste Wind die Bora, die aus dem Norden weht und klares und kaltes Wetter bringt. Jugo bringt Regen und hohe Luftfeuchtigkeit, und in den Sommermonaten bringt der Mistral Frische vom offenen Meer und mildert Hitze und Feuchtigkeit. Lovran hat seinen historischen Kern des mittelalterlichen Stadtkonzepts bewahrt. Die Altstadt war von einer Verteidigungsmauer und Bastionen umgeben, auf deren Fundamenten und Mauern im Laufe der Zeit Häuser errichtet wurden. Die Innenhöfe der Altstadt sind Charme und Besonderheit mediterraner Stadtarchitektur. Hinter dem Steinportal sind die mit Treppen, Vordächern und Skoden geschmückten Fassaden der Nachbarhäuser zu sehen, und in der Mitte des Hofes erhebt sich die steinerne Mündung der Zisterne. Im 21. Jahrhundert verfügt Lovran über ein reiches historisches Erbe, eine jahrhundertealte touristische Tradition, eine erhaltene Natur und eine gut ausgebaute Infrastruktur, was alles die Wiederbelebung des Tourismus mit nachhaltiger Entwicklung und Einhaltung aller ökologischen Standards ermöglicht. Das gute Klima, die üppige mediterrane Vegetation und die günstige geografische Lage ermöglichten an der Wende vom 19. zum 20. Jahrhundert eine starke Entwicklung des Tourismus. Seitdem ist Lovran neben Opatija der wichtigste Ort an der berühmten Riviera. Mehrere damals erbaute Villen gehören zum Weltkulturerbe. Das Klima ist mediterran mit kontinentalen Elementen. Die durchschnittliche Lufttemperatur im Winter beträgt 7°C, im Sommer 22°C und im Jahresdurchschnitt 13,3°C. Die Meerestemperaturen liegen zwischen einem Minimum von 9 °C in den Wintermonaten und einem Maximum von 26 °C im August. Lovran hat 230 Sonnentage pro Jahr und eine durchschnittliche Niederschlagsmenge von 1.500 Litern pro m2. Diese spezifischen mikroklimatischen Bedingungen ermöglichten das Gedeihen aller mediterranen Pflanzen und Pflanzen. Entlang der Küste wachsen reichlich Lorbeer, Palmen, Magnolien, verschiedene Arten immergrüner Sträucher, Honigeichen, Kiefern und Zypressen. Oberhalb von Lovran gedeihen in Terrassengärten Kirschen, Weinreben und Oliven, und auf tiefgründigen, ausgewaschenen und angesäuerten Böden wachsen üppig Wälder mit zahmen Kastanienbäumen (den berühmten Lovran-Kastanienbäumen). Die üppige Vegetation und die hohe Salzkonzentration im Meer (37,8 ‰) führen zu einem reichen Pflanzen- und Meeresaerosolgehalt in der Luft. All diese Elemente machen das Klima in Lovran sehr anregend und gesundheitsfördernd.
Bei allen unseren Angeboten sind die Preise identisch mit dem Direktkauf bei der Agentur/dem Entwickler in Kroatien, da wir der offizielle Vertreter dieser Agenturen auf dem tschechischen, slowakischen, deutschen und österreichischen Markt sind. Dies gilt ohne zusätzliche Zuschläge für deutschsprachige Dienstleistungen.
Sehr geehrte Kunden, die Besichtigung von Immobilien, die Mitteilung der Lage und andere detaillierte Informationen sind nur mit einem unterzeichneten Vermittlungsvertrag möglich, der die Grundlage für weitere Aktionen wie den Kauf einer Immobilie bildet. Alles steht im Einklang mit dem Gesetz über die Vermittlung beim Kauf von Immobilien. Der Käufer zahlt eine gesetzliche Vermittlungsprovision in Höhe von 3% (+ MwSt.) des vereinbarten Preises, und zwar nur im Falle des Kaufs der Immobilie. Sollte der Kauf nicht zustande kommen, ist der Vertrag für Sie nicht bindend und wird annulliert. Wenn Sie ernsthaft an der Immobilie interessiert sind, senden wir Ihnen den Vertrag auf Anfrage zu.
Wir werden Ihnen innerhalb von 24 Stunden antworten.
Wir bieten nur geprüfte Immobilien an.
Wir garantieren eine hohe Servicequalität.
Wir können Ihnen bei der Vermittlung von Unterkünften während der Besichtigungen helfen.
- Ich habe eine Immobilie aus dem Angebot ausgewählt
- Ich kontaktiere den Makler
- Ich unterschreibe einen Vertretungsvertrag - Details hier! (die Unterzeichnung des Vertrags ist gesetzlich vorgeschrieben)
- Ich richte eine OIB ein - Details hier (die Einrichtung ist gesetzlich vorgeschrieben)
- Besichtigungen vor Ort
- Unterzeichnung der Reservierung, des Kaufvertrags