ZAGREB, TRNJE - Fünf-Zimmer-Wohnung mit zwei separaten Eingängen in bester Lage
| Registrationsnummer | DN-44483 |
| Art des Angebots | Verkauf |
| Kategorie | Appartements |
| Bezirk | Grad Zagreb |
| Gemeindeteil | Donji Grad |
| Preis | 490 770 € |
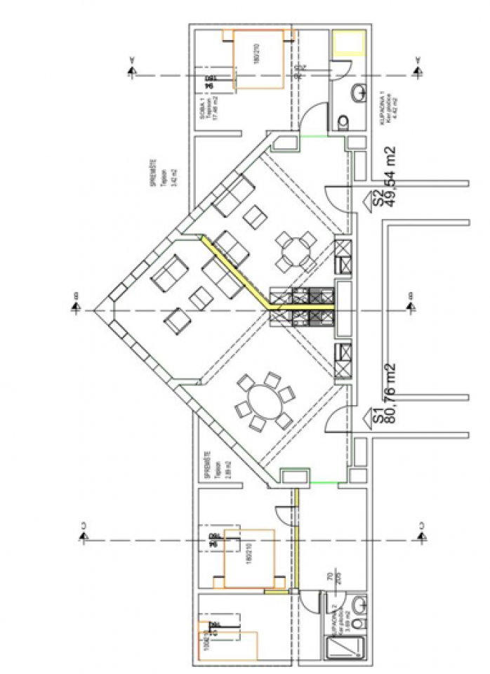
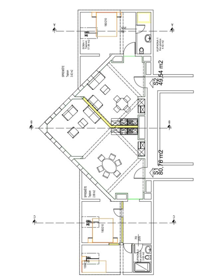
| Gesamtfläche | 123 m² |
| Wohnfläche (Wohnung) | 123 m² |
| Strom | |
| Wasser | |
| Abfall | |
| Gas | |
| Klimaanlage | |
| Heizung | ano |
| Energieintensität | X - Nicht ausgestellt |
ZAGREB, TRNJE – Fünf-Zimmer-Wohnung mit zwei separaten Eingängen in Toplage Eine geräumige und hochwertige Fünf-Zimmer-Wohnung mit 123 m² Wohnfläche steht zum Verkauf. Sie befindet sich in einer attraktiven und begehrten Lage in Zagreb, in der Vukovarska-Straße in Trnje. Die Wohnung liegt im siebten Stock eines gepflegten Wohnhauses mit Aufzug aus dem Jahr 1998 und bietet einen weiten Ausblick sowie viel Tageslicht. Die Wohnung besticht durch ihren einzigartigen und funktionalen Grundriss und ist derzeit in zwei separate Wohneinheiten mit jeweils eigenem Eingang unterteilt. Es besteht die Möglichkeit, die beiden Einheiten einfach zu einer einzigen zusammenzulegen. Dadurch entstünde eine repräsentative Familienwohnung oder eine äußerst rentable Kapitalanlage. Aufgrund ihrer Lage, der Wohnfläche und der flexiblen Raumaufteilung stellt diese Immobilie eine seltene Gelegenheit auf dem Markt dar. In unmittelbarer Nähe befinden sich der Busbahnhof, ein Gericht, Geschäfte, Schulen, Gewerbebetriebe und alle anderen wichtigen Einrichtungen der Stadt sowie eine hervorragende Anbindung an den öffentlichen Nahverkehr. In unmittelbarer Nähe befinden sich der Busbahnhof, ein Gericht, Geschäfte, Schulen, Gewerbebetriebe und alle anderen wichtigen Einrichtungen der Stadt sowie hervorragende Anbindungen an den öffentlichen Nahverkehr. Die Wohnung zeichnet sich durch ihren einzigartigen und funktionalen Grundriss aus und ist derzeit in zwei separate Wohneinheiten mit jeweils eigenem Eingang unterteilt.
Bei allen unseren Angeboten sind die Preise identisch mit dem Direktkauf bei der Agentur/dem Entwickler in Kroatien, da wir der offizielle Vertreter dieser Agenturen auf dem tschechischen, slowakischen, deutschen und österreichischen Markt sind. Dies gilt ohne zusätzliche Zuschläge für deutschsprachige Dienstleistungen.
Sehr geehrte Kunden, die Besichtigung von Immobilien, die Mitteilung der Lage und andere detaillierte Informationen sind nur mit einem unterzeichneten Vermittlungsvertrag möglich, der die Grundlage für weitere Aktionen wie den Kauf einer Immobilie bildet. Alles steht im Einklang mit dem Gesetz über die Vermittlung beim Kauf von Immobilien. Der Käufer zahlt eine gesetzliche Vermittlungsprovision in Höhe von 3% (+ MwSt.) des vereinbarten Preises, und zwar nur im Falle des Kaufs der Immobilie. Sollte der Kauf nicht zustande kommen, ist der Vertrag für Sie nicht bindend und wird annulliert. Wenn Sie ernsthaft an der Immobilie interessiert sind, senden wir Ihnen den Vertrag auf Anfrage zu.
Wir werden Ihnen innerhalb von 24 Stunden antworten.
Wir bieten nur geprüfte Immobilien an.
Wir garantieren eine hohe Servicequalität.
Wir können Ihnen bei der Vermittlung von Unterkünften während der Besichtigungen helfen.
- Ich habe eine Immobilie aus dem Angebot ausgewählt
- Ich kontaktiere den Makler
- Ich unterschreibe einen Vertretungsvertrag - Details hier! (die Unterzeichnung des Vertrags ist gesetzlich vorgeschrieben)
- Ich richte eine OIB ein - Details hier (die Einrichtung ist gesetzlich vorgeschrieben)
- Besichtigungen vor Ort
- Unterzeichnung der Reservierung, des Kaufvertrags